Главная Проекты домов Проект каркасного дома с тренажерным залом на мансардном этаже

D2062 Проект каркасного дома с тренажерным залом на мансардном этаже

Сравнить проект В избранное
Проект каркасного дома с тренажерным залом на мансардном этаже / 1
Проект каркасного дома с тренажерным залом на мансардном этаже / 2
Проект каркасного дома с тренажерным залом на мансардном этаже / 3
Проект каркасного дома с тренажерным залом на мансардном этаже / 4
Проект каркасного дома с тренажерным залом на мансардном этаже / 1
Проект каркасного дома с тренажерным залом на мансардном этаже / 2
Проект каркасного дома с тренажерным залом на мансардном этаже / 3
Проект каркасного дома с тренажерным залом на мансардном этаже / 4
D2062
137 м²
Проект с подрядом
Компания: Izburg
Стоимость строительства
3 855 531 ₽
Заказать подробную смету
+7 (812) XXX-XX-XX Показать телефон
Задать вопрос по проекту
Технические характеристики
Общие
Материал стен
Каркас
Общая площадь
137 м²
Площадь застройки
166 м²
Приведенная площадь
122.46 м²
Количество жилых комнат/спален
3
Этажи
1 этаж + мансарда
Гараж
Нет гаража
Подвал / цокольный этаж
Без подвала
Длина дома
10.0 м
Ширина дома
9.6 м
Кровля
Металлочерепица
Облицовка внешних стен
Деревянная вагонка
Толщина несущих наружных стен
150 мм
Межэтажные перекрытия
По деревянным балкам
Внутренние не несущие перегородки
Каркасно-обшивные
Фундамент
Монолитная ж/бетонная плита
Терраса
Терраса крытая
Дополнительные
Мансардные окна
Есть
Камин
Есть
Сауна/баня внутри
Нет
Площадь гостиной
14.4 м²
Площадь кухни
18.3 м²
Количество санузлов
2
Окно в ванной комнате
Есть
Спортзал / детский / игровой зал
Есть
Кладовая
1
Балкон / лоджия
Балкон
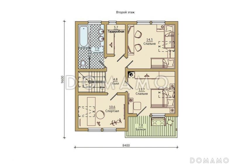
Планы помещений
Фасады
Описание проекта
Компания Domamo предлагает проект каркасного дома с тренажерным залом на мансардном этаже D2062. Общая площадь - 137 м2, размер - 10.0х9.6 м. Фундамент - монолитная ж/бетонная плита, кровля - металлочерепица, внешняя отделка - деревянная вагонка. Для заказа проекта или внесения изменений свяжитесь с нами с помощью форм обратной связи на сайте или по телефону +7 (831) 231-05-01.
Категории проекта: с мансардой для постоянного проживания каркасные современные от 100 до 200 кв.м 10х10 в европейском стиле с террасой каркасные дома с мансардой одноэтажные с мансардой одноэтажные до 150 кв. м. 10 на 10 с мансардой до 150 кв.м до 200 кв.м с двухскатной крышей 6х10 9х10 9х12 загородные с камином прямоугольные с балконом 10х12 Проекты одноэтажных каркасных домов Проекты каркасных домов с террасой Проекты одноэтажных домов с террасой Типовые проекты загородных одноэтажных домов без гаража одноэтажные без гаража с террасой и камином одноэтажные с тремя спальнями Проекты домов с тремя спальнями каркасные для постоянного проживания одноэтажные 10x10 с мансардой до 150 кв м с мансардой и террасой полутораэтажные одноэтажные каркасные для круглогодичного проживания 9 на 12 с мансардой одноэтажные до 200 кв м до 140 кв м 10x12 с мансардой с балконом и террасой каркасные с мансардой до 150 одноэтажные с мансардными окнами с мансардой с камином с мансардой с двухскатной крышей с мансардой современные с мансардой с мансардными окнами с мансардой с балконом с мансардой прямоугольные с мансардой для постоянного проживания с мансардой до 200 кв.м с мансардой от 100 до 150 кв.м без гаража современные с подрядом с камином с изолированной кухней с двухскатной крышей с тремя спальнями одноэтажные с мансардой каркасные одноэтажные с мансардой для постоянного проживания одноэтажные с мансардой с большой кухней одноэтажные с мансардой с изолированной кухней одноэтажные с мансардой современные одноэтажные с мансардой с балконом современные без гаража современные с двухскатной крышей современные с террасой современные 10х10 современные до 150 кв. м современные от 100 до 200 кв. м европейские 10х10 до 150 кв.м каркасные до 150 кв.м для постоянного проживания до 150 кв.м без гаража до 150 кв.м с двухскатной крышей до 150 кв.м с подрядом до 150 кв.м с мансардными окнами до 150 кв.м с балконом до 150 кв.м прямоугольные до 150 кв.м с изолированной кухней до 150 кв.м без бани до 150 кв.м с террасой до 150 кв.м без подвала до 150 кв.м с 3 спальнями до 150 кв.м с большой кухней до 150 кв.м с камином из клееного бруса без гаража Проекты домов с подрядом Показать все категории Скрыть категории

Похожие проекты
Состав проекта
Входит в стоимость
Цена, руб. Сроки, дней
Комплект архитектурно-строительных чертежей (АС) Входит в стоимость Готов к отправке
Разрабатывается отдельно
Цена, руб. Сроки, дней
Адаптация фундамента (изменение типа фундамента) по запросу 14 рабочих дней
Дизайн интерьера (стоимость от 2200руб. за квад.метр площади) по запросу 30 рабочих дней
Внесение изменений в проект по запросу 20 рабочих дней
Фэншуй дома 20 000 ₽ 14 рабочих дней в корзину
Фэншуй участка 15 000 ₽ 14 рабочих дней в корзину
Фэншуй полная консультация дом+участок с выездом на объект 100 000 ₽ 30 рабочих дней в корзину
Опции проекта вы можете заказать в корзине при оформлении заказа
Комплектации
Отзывы покупателей
Рейтинг покупателей
0 / 5 5 5 1
На основе 1 оценок покупателей
0%
0%
0%
0%
0%
Отзывы о проекте D2062
Отзыв о проекте D2062
Чтобы оставить отзыв, пожалуйста авторизуйтесь.
Подбор строительной компании
Не знаете кому доверить строительство дома? Мы можем помочь! Подберем для вас из сотен наших партнеров несколько компаний с лучшем соотношением цена/качество под конкретно ваш запрос.
Подобрать