Главная Проекты домов Проект дома из газобетона с двумя входами в котельную

D2002 Проект дома из газобетона с двумя входами в котельную

Сравнить проект В избранное
Технические характеристики
Общие
Материал стен
Газобетон
Общая площадь
184 м²
Жилая площадь
87.7 м²
Приведенная площадь
179.65 м²
Количество жилых комнат/спален
4
Этажи
1 этаж + мансарда
Гараж
Пристроенный гараж
Количество машин
1
Подвал / цокольный этаж
Без подвала
Длина дома
12.5 м
Ширина дома
12.0 м
Высота в коньке
9.6 м
Кровля
Гибкая черепица
Облицовка внешних стен
Мокрая штукатурка
Толщина несущих наружных стен
375-400 мм
Межэтажные перекрытия
По деревянным балкам
Внутренние не несущие перегородки
Каркасно-обшивные
Фундамент
Монолитная ж/бетонная плита
Терраса
Терраса крытая
Дополнительные
Камин
Есть
Сауна/баня внутри
Нет
Площадь гостиной
21.8 м²
Площадь кухни
15.9 м²
Количество санузлов
2
Окно в ванной комнате
Есть
Котельная
Есть
Кладовая
1
Балкон / лоджия
Балкон
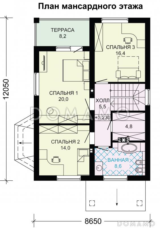
Планы помещений
Фасады
Описание проекта
Компания Domamo предлагает проект дома из газобетона с двумя входами в котельную D2002. Общая площадь - 184 м2, размер - 12.5х12.0 м. Фундамент - монолитная ж/бетонная плита, кровля - гибкая черепица, внешняя отделка - мокрая штукатурка. Для заказа проекта или внесения изменений свяжитесь с нами с помощью форм обратной связи на сайте или по телефону +7 (831) 231-05-01.
Категории проекта: с мансардой с гаражом с мансардой и гаражом для постоянного проживания пенобетон современные от 100 до 200 кв.м в европейском стиле с эркером с террасой из пеноблоков с мансардой из газобетона с мансардой и гаражом из газобетона с мансардой и эркером из газобетона с эркером из газобетона готовые из газобетона с мансардой из газобетона с гаражом одноэтажные с гаражом одноэтажные с мансардой одноэтажные с котельной с котельной одноэтажные из газобетона из газосиликатных блоков из пеноблоков с гаражом одноэтажные с гаражом и мансардой до 200 кв.м с двухскатной крышей 12х12 9х12 загородные из керамзитобетонных блоков с камином квадратные с балконом 10х12 из газобетона с террасой с эркером и мансардой из блоков одноэтажные из блоков из блоков с гаражом из блоков с мансардой из блоков с эркером Проекты домов из пеноблоков с эркером из пеноблоков с террасой загородные из газобетона Проекты одноэтажных домов с эркером Проекты одноэтажных домов с террасой Типовые проекты загородных одноэтажных домов с террасой и камином одноэтажные 12 на 12 с гаражом под одной крышей с мансардой 12 на 12 одноэтажных из керамзитобетонных блоков одноэтажные с 4 спальнями одноэтажные с гаражом и террасой с мансардой и террасой полутораэтажные с гаражом и террасой с 4 спальнями 9 на 12 с мансардой одноэтажные до 200 кв м 10x12 с мансардой 12 на 12 с гаражом с балконом и террасой из пеноблоков загородные с эркером и гаражом с мансардой с котельной с мансардой с камином с мансардой с двухскатной крышей с мансардой современные с мансардой с балконом с мансардой квадратные с мансардой готовые с мансардой для постоянного проживания с мансардой до 200 кв.м одноэтажные из газобетона с гаражом одноэтажные из газобетона с террасой одноэтажные из газобетона с мансардой одноэтажные из газобетона с 4 спальнями из газобетона до 200 кв.м из газобетона от 100 до 200 кв.м из газобетона с двухскатной крышей из газобетона современные из газобетона с балконом из газобетона с котельной из газобетона квадратные из газобетона готовые из газобетона с камином из газобетона с большой кухней из газобетона с четырьмя спальнями из газобетона 12х12 из газобетона для постоянного проживания двухэтажные из газобетона с гаражом двухэтажные из газобетона с террасой двухэтажные из газобетона с камином двухэтажные из газобетона с котельной двухэтажные из газобетона современные двухэтажные из газобетона с двухскатной крышей двухэтажные из газобетона с вальмовой крышей двухэтажные из газобетона до 200 кв. м двухэтажные из газобетона без подвала двухэтажные из газобетона с эркером двухэтажные из газобетона с 4 спальнями из газобетона с мансардой современные из газобетона с мансардой с балконом из газобетона с мансардой с террасой из газобетона с мансардой с камином из газобетона с мансардой для постоянного проживания из газобетона с мансардой готовые из газобетона с мансардой с двухскатной крышей из газобетона с мансардой с 4 спальнями из газобетона с мансардой с большой кухней из газобетона с мансардой квадратные одноэтажные с мансардой для постоянного проживания одноэтажные с мансардой с большой кухней одноэтажные с мансардой современные одноэтажные с мансардой с балконом современные с гаражом современные с двухскатной крышей современные с террасой современные 12х12 современные от 100 до 200 кв. м европейские 12х12 из пеноблоков в современном стиле из пеноблоков с двухскатной крышей из пеноблоков с вальмовой крышей из пеноблоков квадратные из пеноблоков с балконом из пеноблоков для постоянного проживания из пеноблоков готовые из пеноблоков с камином из пеноблоков 12х12 из пеноблоков от 100 до 200 м2 из пеноблоков с 4 спальнями из пеноблоков с большой кухней из клееного бруса без гаража Показать все категории Скрыть категории

Похожие проекты
Состав проекта
Входит в стоимость
Цена, руб. Сроки, дней
Комплект архитектурно-строительных чертежей (АС) Входит в стоимость 3 рабочих дня
Готово к продаже
Цена, руб. Сроки, дней
Зеркальная версия проекта Входит в стоимость 3 рабочих дня
Паспорт рабочего проекта 5 000 ₽ 3 рабочих дня в корзину
Инженерные разделы: ВК + ОВ + ЭО 23 000 ₽ 3 рабочих дня в корзину
Дополнительная копия проекта формата А3 3 000 ₽ 3 рабочих дня в корзину
Две дополнительные копии проекта формата А3 + 1 паспорт рабочего проекта 10 100 ₽ 3 рабочих дня в корзину
Электронная копия проекта (скан распечатанной версии) 4 000 ₽ 3 рабочих дня в корзину
Разрабатывается отдельно
Цена, руб. Сроки, дней
Адаптация фундамента (изменение типа фундамента) по запросу 14 рабочих дней
Дизайн интерьера (стоимость от 2200руб. за квад.метр площади) по запросу 30 рабочих дней
Внесение изменений в проект по запросу 20 рабочих дней
Фэншуй дома 20 000 ₽ 14 рабочих дней в корзину
Фэншуй участка 15 000 ₽ 14 рабочих дней в корзину
Фэншуй полная консультация дом+участок с выездом на объект 100 000 ₽ 30 рабочих дней в корзину
Опции проекта вы можете заказать в корзине при оформлении заказа
Предложения строителей Выбрать регион
Минимальная
6 108 100 ₽
Стандарт
7 545 300 ₽
Под чистовую отделку
9 880 750 ₽
Показать подробные комплектации
Сравнить 0 комплектаций
Свернуть все
Развернуть все
Минимальная
6 108 100 ₽
Сравнить
Стандарт
7 545 300 ₽
Сравнить
Под чистовую отделку
9 880 750 ₽
Сравнить
Кровля
Кровельное покрытие
Обрешетка
Контробрешетка
Противоконденсатная (ветро-гидроизоляционная) пленка
Стропильная система
Утепление чердачного перекрытия и стропильной системы
Подшивка свесов кровли
Подшивка потолков террас и лоджий
Водосточная система
Система снегозадержания
Молниезащита
Фундамент
Сваи ж/бетонные
Сваи стальные винтовые
Лента ж/бетонная монолитная мелкозаглубленная
Лента ж/бетонная монолитная на глубину промерзания
Лента ж/бетонная сборная (из ФБС) на глубину промерзания
Плита ж/бетонная монолитная мелкозаглубленная
УШП (Утепленная Шведская Плита)
Бетоннная отмостка по периметру дома
Дренажная система по периметру дома
Ливневая система
Облицовка цоколя фундамента
Система контурного заземления
Стены
Несущая часть стены
Фасадная отделка
Утепление стены
Внутренняя обшивка/штукатурка со стороны помещения
Пол первого этажа
Несущая часть перекрытия
Теплоизоляция цокольного перекрытия
Стяжка/подготовка под чистый пол
Перекрытия над первым и последующими этажами
Несущая часть перекрытия
Звукоизоляция/теплоизоляция в перекрытии
Стяжка/подготовка под чистый пол
Отделка потолка нижележащего этажа
Окна и внешние двери
Окна
Оконные наличники
Откосы в помещении
Отливы снаружи
Подоконники
Входные двери
Внутренние конструкции
Внутренние несущие стены
Внутренние ненесущие стены
Звукоизоляция внутренних стен/перегородок
Межэтажная строительная (черновая) лестница
Межэтажная постоянная (чистовая) лестница
Межкомнатные двери
Высота потолков 1 этажа
3 м
3 м
Высота потолков 2 этажа
Настилы полов и ограждения крылец, террас, балконов
Гидроизоляция полов балконов
Инженерное оснащение
Жидкостной теплый пол
Электрический теплый пол
Система вентиляции
Только вводы воды, электричества, выводы канализации
Электроразводка и электрощит
Разводка хол. и гор. водоснабжения (ХВС и ГВС)
Разводка батарей и/или системы теплого пола. Без оборудования котельной.
Иное инженерное оснащение
Подготовка участка для строительства
Устройство временного щита электроснабжения
Устройство въезда на участок
Дорога на участке до пятна застройки
Подъем пятна застройки
Подготовка пятна застройки для фундаментных работ
Перемещение или вывоз грунта из котлована фундамента
Обеспечение строительного процесса
Доставка стройматериалов
Генератор для обеспечения электричеством
Уборка и вывоз строительного мусора
Организация проживания рабочих (бытовка)
Биотуалет для рабочих
Гарантия на все выполненные работы
Гарантия
Свернуть
Подбор строительной компании
Не знаете кому доверить строительство дома? Мы можем помочь! Подберем для вас из сотен наших партнеров несколько компаний с лучшем соотношением цена/качество под конкретно ваш запрос.
Подобрать
Отзывы покупателей
Рейтинг покупателей
0 / 5 5 5 1
На основе 1 оценок покупателей
0%
0%
0%
0%
0%
Отзывы о проекте D2002
Отзыв о проекте D2002
Чтобы оставить отзыв, пожалуйста авторизуйтесь.
Подбор строительной компании
Не знаете кому доверить строительство дома? Мы можем помочь! Подберем для вас из сотен наших партнеров несколько компаний с лучшем соотношением цена/качество под конкретно ваш запрос.
Подобрать