Главная Проекты домов Проект дома из кирпича

D1740 Проект дома из кирпича

Сравнить проект В избранное
Проект дома из кирпича / 1
Проект дома из кирпича / 2
Проект дома из кирпича / 3
Проект дома из кирпича / 4
Проект дома из кирпича / 1
Проект дома из кирпича / 2
Проект дома из кирпича / 3
Проект дома из кирпича / 4
D1740
1183 м²
Подготовка проекта:
Готов к отправке
Стоимость проекта
Купить проект
Задайте вопросы по проекту нашему архитектору
8 (800) 200-28-83
Время работы: пн-вс: с 9:00 до 20:00
Задать вопрос по проекту

Технические характеристики
Общие
Материал стен
Кирпич
Общая площадь
1183 м²
Жилая площадь
164.3 м²
Приведенная площадь
999.1 м²
Количество жилых комнат/спален
7
Этажи
2 этажа
Гараж
Нет гаража
Подвал / цокольный этаж
Без окон
Длина дома
42.2 м
Ширина дома
26.7 м
Кровля
Гибкая черепица
Облицовка внешних стен
Мокрая штукатурка
Толщина несущих наружных стен
510 мм
Межэтажные перекрытия
Монолитные
Внутренние не несущие перегородки
Кирпичные
Фундамент
Ленточный монолитный
Терраса
Терраса крытая
,
Терраса застекленная (веранда)
Дополнительные
Окна
Окна до пола
,
Панорамные окна
Второй свет
Есть
Камин
Есть
Сауна/баня внутри
Есть
Бассейн
Есть
Площадь гостиной
52.3 м²
Площадь кухни
24.4 м²
Количество санузлов
9
Окно в ванной комнате
Есть
Котельная
Есть
Кабинет
Есть
Постирочная
Есть
Спортзал / детский / игровой зал
Есть
Бильярдная
Есть
Хозяйский санузел
Есть
Хозяйская гардеробная
Есть
Кладовая
7
Зимний сад
Есть
Балкон / лоджия
Балкон
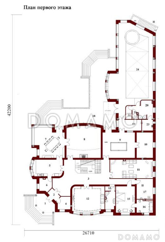
Планы помещений
Описание проекта

Роскошная усадьба с бассейном для комфортной жизни семьи из нескольких поколений. Экстерьер украшают панорамные окна, колонны и изящные ограждения балконов.

Дом состоит из основной части и крыла с бассейном. Первый этаж кроме стандартных гостиной, кухни, кабинета, также предусматривает наличие кинозала, зимнего сада, спортзала. Второй этаж занимают четыре спальни и детская, при этом все комнаты оборудованы отдельными санузлами.

Преимущества и особенности

  • площадь 1183 кв.м позволяет планировать пространство под любые запросы,

  • спальня на первом этаже подойдет для гостей или пожилых родственников,

  • гостиная в этом проекте очень светлая, здесь предусмотрен второй свет — высокие окна в два этажа.

Категории проекта: для постоянного проживания кирпич от 500 кв.м с эркером кирпичные дома с эркером с террасой из кирпича с террасой готовые с цокольным этажом загородные из кирпича двухэтажные из кирпича двухэтажные кирпичные с подвалом кирпичные с котельной с подвалом с котельной со вторым светом с баней с бассейном загородные с баней и бассейном с бильярдной с камином с сауной с гардеробной с балконом с верандой с зимним садом с панорамным остеклением в стиле эклектика кирпичные с верандой кирпичные с баней кирпичные с бассейном двухэтажные с эркером Проекты двухэтажных домов с террасой Проекты двухэтажных домов с верандой Проекты двухэтажных домов с подвалом на две семьи без гаража с террасой и камином с кабинетом особняки с панорамными окнами и террасой двухэтажные с сауной с балконом и террасой большие сложной формы двухэтажные с камином двухэтажные со вторым светом двухэтажные с панорамными окнами двухэтажные с балконом двухэтажные с балконом и террасой двухэтажные с бассейном двухэтажные без гаража большие готовые большие в стиле эклектика большие с вторым светом большие с балконом большие сложной формы большие с камином большие с бассейном большие с окном в ванной комнате большие с панорамными окнами большие с окнами в пол большие без гаража большие с большой кухней большие с изолированной кухней большие с террасой большие с баней большие с прачечной большие с котельной большие с кабинетом большие с мастер-спальней большие с спортзалом большие с зимним садом недорогие с панорамными окнами из клееного бруса без гаража Показать все категории Скрыть категории

Похожие проекты
Состав проекта
Входит в стоимость
Цена, руб. Сроки, дней
Комплект архитектурно-строительных чертежей (АС) Входит в стоимость Готов к отправке
Инженерные разделы: ВК + ОВ Входит в стоимость Готов к отправке
Разрабатывается отдельно
Цена, руб. Сроки, дней
Адаптация фундамента (изменение типа фундамента) по запросу 14 рабочих дней
Дизайн интерьера (стоимость от 2200руб. за квад.метр площади) по запросу 30 рабочих дней
Внесение изменений в проект по запросу 20 рабочих дней
Фэншуй дома 20 000 ₽ 14 рабочих дней в корзину
Фэншуй участка 15 000 ₽ 14 рабочих дней в корзину
Фэншуй полная консультация дом+участок с выездом на объект 100 000 ₽ 30 рабочих дней в корзину
Опции проекта вы можете заказать в корзине при оформлении заказа
Отзывы покупателей
Рейтинг покупателей
0 / 5 5 5 1
На основе 1 оценок покупателей
0%
0%
0%
0%
0%
Отзывы о проекте D1740
Отзыв о проекте D1740
Чтобы оставить отзыв, пожалуйста авторизуйтесь.
Подбор строительной компании
Не знаете кому доверить строительство дома? Мы можем помочь! Подберем для вас из сотен наших партнеров несколько компаний с лучшем соотношением цена/качество под конкретно ваш запрос.
Подобрать