Главная Проекты домов Проект классического дома с винным погребом, бассейном, тренажерным залом, бильярдной, сауной, турецкой и русской парной

D1707 Проект классического дома с винным погребом, бассейном, тренажерным залом, бильярдной, сауной, турецкой и русской парной

Сравнить проект В избранное
Проект классического дома с винным погребом, бассейном, тренажерным залом, бильярдной, сауной, турецкой и русской парной / 1
Проект классического дома с винным погребом, бассейном, тренажерным залом, бильярдной, сауной, турецкой и русской парной / 1
D1707
858 м²
Подготовка проекта:
Готов к отправке
Стоимость проекта
Купить проект
Задайте вопросы по проекту нашему архитектору
8 (800) 200-28-83
Время работы: пн-вс: с 9:00 до 20:00
Задать вопрос по проекту

Технические характеристики
Общие
Материал стен
Газобетон
Общая площадь
858 м²
Жилая площадь
110 м²
Приведенная площадь
845.4 м²
Количество жилых комнат/спален
4
Этажи
2 этажа
Гараж
Нет гаража
Подвал / цокольный этаж
Без подвала
Погреб
Есть
Длина дома
41.2 м
Ширина дома
20.5 м
Кровля
Металлочерепица
Толщина несущих наружных стен
375-400 мм
Межэтажные перекрытия
Монолитные
Внутренние не несущие перегородки
Кирпичные
Фундамент
Монолитная ж/бетонная плита
Терраса
Без террасы
Дополнительные
Камин
Есть
Сауна/баня внутри
Есть
Бассейн
Есть
Площадь гостиной
32.2 м²
Площадь кухни
16.7 м²
Количество санузлов
6
Окно в ванной комнате
Есть
Котельная
Есть
Кабинет
Есть
Постирочная
Есть
Спортзал / детский / игровой зал
Есть
Бильярдная
Есть
Хозяйский санузел
Есть
Хозяйская гардеробная
Есть
Кладовая
8
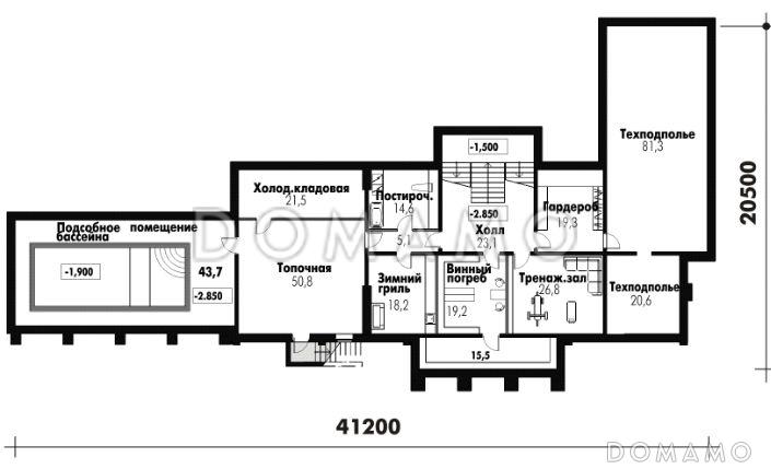
Планы помещений
Описание проекта

Проект комфортабельной усадьбы для жизни семьи из 3-4 человек. Здание построено из газобетона, для декорирования использовались элементы классического стиля: колонны, габаритный центральный фронтон, обрамление окон.

В доме предусмотрен цокольный этаж. Здесь размещены технические помещения, а также тренажерный зал и винный погреб. Во флигеле расположен бассейн и релакс-зона с тремя видами саун. В основной части здания по центру находится холл с парадной лестницей. Далее — гостиная, столовая, бильярдная. На втором этаже запланированы три мастер-спальни.

Преимущества и особенности:

  • позади дома предусмотрена просторная терраса, на которой достаточно места для нескольких комплектов уличной мебели. Летом здесь можно с комфортом принимать солнечные ванны,

  • оборудование всех спален отдельными ванными комнатами понравится тем, кто ценит личное пространство и приватность,

  • подсобные и технические помещения помогут лучше организовать в доме систему хранения вещей и технологического оборудования.

Категории проекта: для постоянного проживания пенобетон в классическом стиле от 500 кв.м из газобетона готовые двухэтажные с котельной двухэтажные из газобетона из газосиликатных блоков двухэтажные из пеноблоков с баней с бассейном загородные из керамзитобетонных блоков с баней и бассейном с бильярдной с камином с сауной с гардеробной угловые с барбекю в стиле эклектика из газобетона с баней из блоков двухэтажные из блоков из пеноблоков с баней загородные из газобетона без гаража с кабинетом особняки с 4 спальнями двухэтажные с сауной г-образные недорогие из пеноблоков загородные большие двухэтажные с камином двухэтажные с 4 спальнями двухэтажные с бассейном двухэтажные в классическом стиле двухэтажные эконом класса двухэтажные без гаража из газобетона от 500 кв.м из газобетона в классическом стиле из газобетона с котельной из газобетона угловые из газобетона готовые из газобетона с камином из газобетона с большой кухней из газобетона с четырьмя спальнями из газобетона с кабинетом из газобетона с изолированной кухней из газобетона большие из газобетона недорогие из газобетона для постоянного проживания двухэтажные из газобетона без гаража двухэтажные из газобетона без террасы двухэтажные из газобетона недорогие двухэтажные из газобетона с камином двухэтажные из газобетона с прачечной двухэтажные из газобетона с кабинетом двухэтажные из газобетона с котельной двухэтажные из газобетона классические двухэтажные из газобетона большие двухэтажные из газобетона без подвала двухэтажные из газобетона с изолированной кухней двухэтажные из газобетона с баней двухэтажные из газобетона с 4 спальнями классические для постоянного проживания классические без гаража классические с 4 спальнями классические без террасы классические готовые классические недорогие классические элитные классические с котельной классические с большой кухней классические с изолированной кухней классические без подвала классические с сауной классические с прачечной классические угловые классические с камином классические с бассейном классические с кабинетом большие готовые большие в классическом стиле большие в стиле эклектика большие с камином большие с погребом большие с бассейном большие с окном в ванной комнате большие без гаража большие с большой кухней большие с изолированной кухней большие без террасы большие с баней большие с прачечной большие с котельной большие с кабинетом большие с мастер-спальней большие с 4 спальнями большие с спортзалом из пеноблоков в стиле эклектика из пеноблоков в классическом стиле из пеноблоков угловые из пеноблоков для постоянного проживания из пеноблоков недорогие из пеноблоков готовые из пеноблоков с камином из пеноблоков с бассейном из пеноблоков от 500 м2 из пеноблоков большие из пеноблоков с 4 спальнями из пеноблоков с большой кухней из пеноблоков с изолированной кухней недорогие двухэтажные недорогие в стиле эклектика недорогие без гаража недорогие без террасы недорогие для постоянного проживания недорогие с изолированной кухней недорогие с баней недорогие с кабинетом недорогие с котельной недорогие с камином недорогие угловые недорогие большие из клееного бруса без гаража Показать все категории Скрыть категории

Похожие проекты
Состав проекта
Входит в стоимость
Цена, руб. Сроки, дней
Комплект архитектурно-строительных чертежей (АС) Входит в стоимость Готов к отправке
Готово к продаже
Цена, руб. Сроки, дней
Инженерные разделы: ВК + ОВ + ЭО 14 000 ₽ Готов к отправке в корзину
Разрабатывается отдельно
Цена, руб. Сроки, дней
Адаптация фундамента (изменение типа фундамента) по запросу 14 рабочих дней
Дизайн интерьера (стоимость от 2200руб. за квад.метр площади) по запросу 30 рабочих дней
Внесение изменений в проект по запросу 20 рабочих дней
Фэншуй дома 20 000 ₽ 14 рабочих дней в корзину
Фэншуй участка 15 000 ₽ 14 рабочих дней в корзину
Фэншуй полная консультация дом+участок с выездом на объект 100 000 ₽ 30 рабочих дней в корзину
Опции проекта вы можете заказать в корзине при оформлении заказа
Предложения строителей Нижегородская область
Минимальная
18 598 800 ₽
Стандарт
21 980 400 ₽
Под чистовую отделку
29 589 000 ₽
Показать подробные комплектации
Отзывы покупателей
Рейтинг покупателей
0 / 5 5 5 1
На основе 1 оценок покупателей
0%
0%
0%
0%
0%
Отзывы о проекте D1707
Отзыв о проекте D1707
Чтобы оставить отзыв, пожалуйста авторизуйтесь.
Подбор строительной компании
Не знаете кому доверить строительство дома? Мы можем помочь! Подберем для вас из сотен наших партнеров несколько компаний с лучшем соотношением цена/качество под конкретно ваш запрос.
Подобрать