Главная Проекты домов Проект двухэтажного дома с гардеробными на втором этаже

D1692 Проект двухэтажного дома с гардеробными на втором этаже

Сравнить проект В избранное
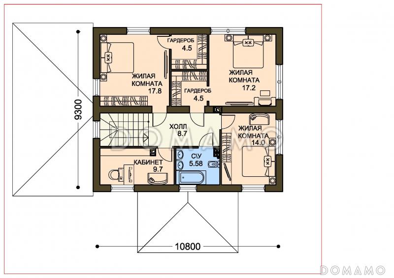
Проект двухэтажного дома с гардеробными на втором этаже / 1
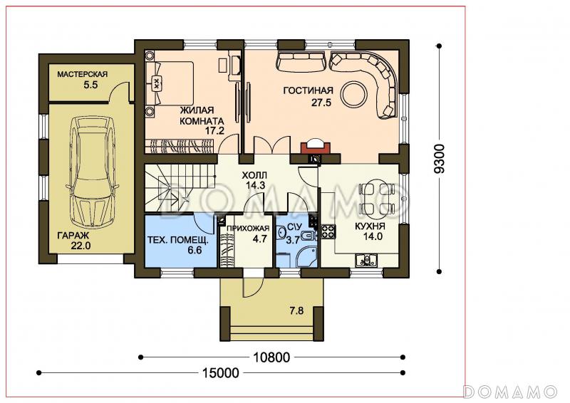
Проект двухэтажного дома с гардеробными на втором этаже / 2
Проект двухэтажного дома с гардеробными на втором этаже / 1
Проект двухэтажного дома с гардеробными на втором этаже / 2
D1692
200 м²
Подготовка проекта:
3 рабочих дня
Стоимость проекта
Купить проект
Задайте вопросы по проекту нашему архитектору
8 (800) 200-28-83
Время работы: пн-вс: с 9:00 до 20:00
Задать вопрос по проекту

Технические характеристики
Общие
Материал стен
Газобетон
Общая площадь
200 м²
Жилая площадь
112.4 м²
Площадь застройки
156 м²
Приведенная площадь
199.74 м²
Количество жилых комнат/спален
5
Этажи
2 этажа
Гараж
Пристроенный гараж
Количество машин
1
Подвал / цокольный этаж
Без подвала
Длина дома
10.8 м
Ширина дома
9.3 м
Кровля
Металлочерепица
Облицовка внешних стен
Мокрая штукатурка
,
Облицовка камнем
Толщина несущих наружных стен
400 мм
Межэтажные перекрытия
Монолитные
Внутренние не несущие перегородки
Каркасно-обшивные
Фундамент
Монолитная ж/бетонная плита
Терраса
Терраса крытая
Дополнительные
Камин
Есть
Сауна/баня внутри
Нет
Площадь гостиной
27.5 м²
Площадь кухни
14 м²
Количество санузлов
2
Окно в ванной комнате
Есть
Котельная
Есть
Кабинет
Есть
Хозяйская гардеробная
Есть
Кладовая
2
Планы помещений
Фасады
Описание проекта

Двухэтажный коттедж в современном стиле, который идеально подойдет для жизни семьи из пяти-шести человек. Каменная кладка и большие окна, расположенные по всему периметру дома, — главные украшения его экстерьера. 

На первом этаже дома располагается небольшая кухня с выходом в просторную гостиную-столовую, а также одна из спальных комнат. Второй этаж включает в себя три спальни и кабинет. 

Преимущества и особенности:

  • В проекте предусмотрено наличие гаража с парковочным местом для одного автомобиля.

  • Расположение одной из спальных комнат на первом этаже оценят старшие члены семьи.

Категории проекта: с гаражом для постоянного проживания пенобетон современные от 100 до 200 кв.м от 200 до 300 кв.м в европейском стиле с террасой из газобетона готовые из газобетона с гаражом двухэтажные двухэтажные с гаражом с котельной двухэтажные из газобетона из газосиликатных блоков двухэтажные из пеноблоков из пеноблоков с гаражом до 200 кв.м 9х12 загородные с четырехскатной крышей из керамзитобетонных блоков с камином с гардеробной прямоугольные из газобетона с террасой из блоков двухэтажные из блоков из блоков с гаражом из пеноблоков с террасой загородные из газобетона Проекты двухэтажных домов с террасой Проекты двухэтажных домов с верандой с террасой и камином с кабинетом с гаражом под одной крышей каменные с гаражом и террасой двухэтажные с террасой и гаражом двухэтажные 200 кв м 11x9 двухэтажные от 150 до 200 кв м из пеноблоков загородные с 5 спальнями от 200 до 250 м двухэтажные с камином двухэтажные в современном стиле из газобетона до 200 кв.м из газобетона от 100 до 200 кв.м из газобетона от 200 до 300 кв.м из газобетона с четырехскатной крышей из газобетона современные из газобетона с котельной из газобетона прямоугольные из газобетона готовые из газобетона с камином из газобетона с кабинетом из газобетона с изолированной кухней из газобетона 8х11 из газобетона для постоянного проживания двухэтажные из газобетона с гаражом двухэтажные из газобетона с террасой двухэтажные из газобетона с камином двухэтажные из газобетона с кабинетом двухэтажные из газобетона с котельной двухэтажные из газобетона современные двухэтажные из газобетона с четырехскатной крышей двухэтажные из газобетона до 200 кв. м двухэтажные из газобетона без подвала двухэтажные из газобетона с изолированной кухней современные с гаражом современные с террасой современные от 100 до 200 кв. м из пеноблоков в современном стиле из пеноблоков с четырехскатной крышей из пеноблоков прямоугольные из пеноблоков для постоянного проживания из пеноблоков готовые из пеноблоков с камином из пеноблоков от 100 до 200 м2 из пеноблоков от 200 до 300 м2 из пеноблоков с изолированной кухней из клееного бруса без гаража Показать все категории Скрыть категории

Похожие проекты
Состав проекта
Входит в стоимость
Цена, руб. Сроки, дней
Комплект архитектурно-строительных чертежей (АС) Входит в стоимость 3 рабочих дня
Готово к продаже
Цена, руб. Сроки, дней
Паспорт рабочего проекта 4 000 ₽ 3 рабочих дня в корзину
Дополнительная копия проекта формата А3 3 000 ₽ 3 рабочих дня в корзину
Две дополнительные копии проекта формата А3 + 1 паспорт рабочего проекта 10 000 ₽ 3 рабочих дня в корзину
Разрабатывается отдельно
Цена, руб. Сроки, дней
Адаптация фундамента (изменение типа фундамента) по запросу 14 рабочих дней
Дизайн интерьера (стоимость от 2200руб. за квад.метр площади) по запросу 30 рабочих дней
Внесение изменений в проект по запросу 20 рабочих дней
Фэншуй дома 20 000 ₽ 14 рабочих дней в корзину
Фэншуй участка 15 000 ₽ 14 рабочих дней в корзину
Фэншуй полная консультация дом+участок с выездом на объект 100 000 ₽ 30 рабочих дней в корзину
Опции проекта вы можете заказать в корзине при оформлении заказа
Варианты проекта Сравнить все варианты
Избранные проекты
Избранные строители
Предложения строителей Нижегородская область
Минимальная
4 174 566 ₽
Стандарт
4 933 578 ₽
Под чистовую отделку
6 641 355 ₽
Показать подробные комплектации
Отзывы покупателей
Рейтинг покупателей
0 / 5 5 5 1
На основе 1 оценок покупателей
0%
0%
0%
0%
0%
Отзывы о проекте D1692
Отзыв о проекте D1692
Чтобы оставить отзыв, пожалуйста авторизуйтесь.
Подбор строительной компании
Не знаете кому доверить строительство дома? Мы можем помочь! Подберем для вас из сотен наших партнеров несколько компаний с лучшем соотношением цена/качество под конкретно ваш запрос.
Подобрать