Главная Проекты домов Проект одноэтажного дома из бруса с тремя спальнями и сауной

D1684 Проект одноэтажного дома из бруса с тремя спальнями и сауной

Сравнить проект В избранное
Проект одноэтажного дома из бруса с тремя спальнями и сауной / 1
Проект одноэтажного дома из бруса с тремя спальнями и сауной / 2
Проект одноэтажного дома из бруса с тремя спальнями и сауной / 1
Проект одноэтажного дома из бруса с тремя спальнями и сауной / 2
D1684
168 м²
Проект с подрядом
Артикул проекта: ФАБИО
Компания: Ecohouse Group
Стоимость строительства
4 165 000 ₽
Заказать подробную смету
+7 (812) XXX-XX-XX Показать телефон
Задать вопрос по проекту
Технические характеристики
Общие
Материал стен
Клееный брус
Общая площадь
168 м²
Приведенная площадь
147.76 м²
Количество жилых комнат/спален
3
Этажи
1 этаж
Гараж
Нет гаража
Подвал / цокольный этаж
Без подвала
Длина дома
15.8 м
Ширина дома
12.0 м
Кровля
Металлочерепица
Облицовка внешних стен
Без облицовки
Толщина несущих наружных стен
160 мм
Межэтажные перекрытия
По деревянным балкам
Внутренние не несущие перегородки
Каркасно-обшивные
Терраса
Терраса крытая
Дополнительные
Окна
Окна до пола
Сауна/баня внутри
Есть
Площадь гостиной
40.6 м²
Площадь кухни
12.6 м²
Количество санузлов
3
Окно в ванной комнате
Есть
Котельная
Есть
Кладовая
1
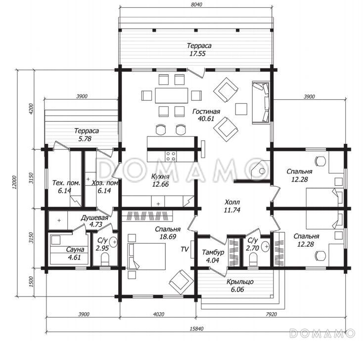
Планы помещений
Описание проекта
Компания Domamo предлагает проект одноэтажного дома из бруса с тремя спальнями и сауной D1684. Общая площадь - 168 м2, размер - 15.8х12.0 м. Фундамент - , кровля - металлочерепица, внешняя отделка - без облицовки. Для заказа проекта или внесения изменений свяжитесь с нами с помощью форм обратной связи на сайте или по телефону +7 (831) 231-05-01.
Категории проекта: деревянные для постоянного проживания из клееного бруса от 100 до 200 кв.м с эркером с террасой одноэтажные одноэтажные с котельной с котельной одноэтажные деревянные с баней до 200 кв.м с двухскатной крышей загородные с сауной прямоугольные в стиле эклектика Проекты деревянных домов с террасой Проекты деревянных домов с баней Проекты одноэтажных домов из клееного бруса Проекты одноэтажных домов с эркером Проекты одноэтажных домов с террасой Типовые проекты загородных одноэтажных домов Проекты одноэтажных домов с баней без гаража одноэтажные без гаража одноэтажные с тремя спальнями Проекты домов с тремя спальнями деревянные для круглогодичного проживания одноэтажные до 200 кв м одноэтажные в стиле эклектика одноэтажные с двухскатной крышей одноэтажные прямоугольные одноэтажные с окнами в пол одноэтажные с большой гостиной одноэтажные до 180 м2 с террасой эклектика с окнами в пол прямоугольные для постоянного проживания деревянные в стиле эклектика деревянные с окнами в пол деревянные прямоугольные деревянные без гаража деревянные с подрядом деревянные без подвала деревянные с 3 спальнями деревянные с большой гостиной деревянные с баней деревянные от 100 до 200 м2 из клееного бруса проект с подрядом из клееного бруса для постоянного проживания из клееного бруса с окном в ванной комнате из клееного бруса прямоугольный из клееного бруса с окнами в пол (в гостиной) из клееного бруса с окнами в пол из клееного бруса в скандинавском стиле из клееного бруса в стиле эклектика из клееного бруса с двухскатной крышей из клееного бруса с многощипцовой крышей из клееного бруса с каркасно-обшивными перегородками из клееного бруса без облицовки из клееного бруса с перекрытиями по деревянным балкам из клееного бруса с кровлей из металлочерепицы из клееного бруса с котельной из клееного бруса с сауной/баней внутри из клееного бруса с 2 эркерами из клееного бруса с выходом на терассу из гостиной из клееного бруса с крытой терассой из клееного бруса без подвала из клееного бруса без гаража из клееного бруса одноэтажные из клееного бруса от 100 до 200 м2 из клееного бруса с большой гостиной Проекты домов с подрядом Показать все категории Скрыть категории

Похожие проекты
Состав проекта
Входит в стоимость
Цена, руб. Сроки, дней
Комплект архитектурно-строительных чертежей (АС) Входит в стоимость Готов к отправке
Разрабатывается отдельно
Цена, руб. Сроки, дней
Адаптация фундамента (изменение типа фундамента) по запросу 14 рабочих дней
Дизайн интерьера (стоимость от 2200руб. за квад.метр площади) по запросу 30 рабочих дней
Внесение изменений в проект по запросу 20 рабочих дней
Фэншуй дома 20 000 ₽ 14 рабочих дней в корзину
Фэншуй участка 15 000 ₽ 14 рабочих дней в корзину
Фэншуй полная консультация дом+участок с выездом на объект 100 000 ₽ 30 рабочих дней в корзину
Опции проекта вы можете заказать в корзине при оформлении заказа
Комплектации
Отзывы покупателей
Рейтинг покупателей
0 / 5 5 5 1
На основе 1 оценок покупателей
0%
0%
0%
0%
0%
Отзывы о проекте D1684
Отзыв о проекте D1684
Чтобы оставить отзыв, пожалуйста авторизуйтесь.
Подбор строительной компании
Не знаете кому доверить строительство дома? Мы можем помочь! Подберем для вас из сотен наших партнеров несколько компаний с лучшем соотношением цена/качество под конкретно ваш запрос.
Подобрать