Главная Проекты домов Проект дома из клееного бруса с тремя спальнями с французскими балконами, бильярдной и кладовой

D1664 Проект дома из клееного бруса с тремя спальнями с французскими балконами, бильярдной и кладовой

Сравнить проект В избранное
Проект дома из клееного бруса с тремя спальнями с французскими балконами, бильярдной и кладовой / 1
Проект дома из клееного бруса с тремя спальнями с французскими балконами, бильярдной и кладовой / 2
Проект дома из клееного бруса с тремя спальнями с французскими балконами, бильярдной и кладовой / 1
Проект дома из клееного бруса с тремя спальнями с французскими балконами, бильярдной и кладовой / 2
D1664
343 м²
Проект с подрядом
Артикул проекта: ЛЮПИН
Компания: Ecohouse Group
Стоимость строительства
8 520 000 ₽
Заказать подробную смету
+7 (812) XXX-XX-XX Показать телефон
Задать вопрос по проекту
Технические характеристики
Общие
Материал стен
Клееный брус
Общая площадь
343 м²
Приведенная площадь
286.1 м²
Количество жилых комнат/спален
4
Этажи
2 этажа
Гараж
Нет гаража
Подвал / цокольный этаж
Без подвала
Длина дома
14.0 м
Ширина дома
12.0 м
Кровля
Металлочерепица
Облицовка внешних стен
Без облицовки
Толщина несущих наружных стен
160 мм
Межэтажные перекрытия
По деревянным балкам
Внутренние не несущие перегородки
Каркасно-обшивные
Терраса
Терраса крытая
Дополнительные
Окна
Окна до пола
Сауна/баня внутри
Есть
Площадь гостиной
30 м²
Площадь кухни
8.7 м²
Количество санузлов
3
Окно в ванной комнате
Есть
Бильярдная
Есть
Кладовая
1
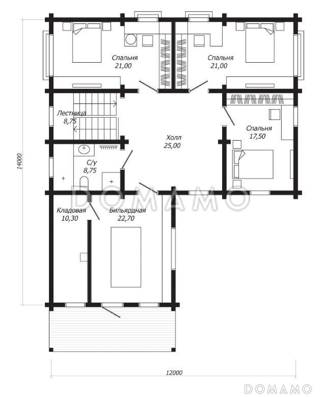
Планы помещений
Описание проекта
Компания Domamo предлагает проект дома из клееного бруса с тремя спальнями с французскими балконами, бильярдной и кладовой D1664. Общая площадь - 343 м2, размер - 14.0х12.0 м. Фундамент - , кровля - металлочерепица, внешняя отделка - без облицовки. Для заказа проекта или внесения изменений свяжитесь с нами с помощью форм обратной связи на сайте или по телефону +7 (831) 231-05-01.
Категории проекта: деревянные для постоянного проживания из клееного бруса от 300 до 400 кв.м с эркером с террасой двухэтажные двухэтажные деревянные с баней загородные с бильярдной с сауной угловые в стиле эклектика двухэтажные с эркером Проекты деревянных домов с террасой Проекты деревянных домов с баней Проекты двухэтажных домов из клееного бруса Проекты двухэтажных домов с террасой Проекты двухэтажных домов с верандой без гаража деревянные для круглогодичного проживания с 4 спальнями двухэтажные с сауной г-образные двухэтажные с 4 спальнями двухэтажные без гаража деревянные в стиле эклектика деревянные с окнами в пол деревянные без гаража деревянные с подрядом деревянные без подвала деревянные с 4 спальнями деревянные с большой гостиной деревянные с баней деревянные от 300 до 400 м2 из клееного бруса проект с подрядом из клееного бруса для постоянного проживания из клееного бруса с окном в ванной комнате из клееного бруса с окнами в пол из клееного бруса в скандинавском стиле из клееного бруса в стиле эклектика из клееного бруса с многощипцовой крышей из клееного бруса с каркасно-обшивными перегородками из клееного бруса без облицовки из клееного бруса с перекрытиями по деревянным балкам из клееного бруса с кровлей из металлочерепицы из клееного бруса с сауной/баней внутри из клееного бруса с 1 эркером из клееного бруса с крытой терассой из клееного бруса без подвала из клееного бруса без гаража из клееного бруса двухэтажные из клееного бруса от 300 до 400 м2 из клееного бруса с большой гостиной Проекты домов с подрядом Показать все категории Скрыть категории

Похожие проекты
Состав проекта
Входит в стоимость
Цена, руб. Сроки, дней
Комплект архитектурно-строительных чертежей (АС) Входит в стоимость Готов к отправке
Разрабатывается отдельно
Цена, руб. Сроки, дней
Адаптация фундамента (изменение типа фундамента) по запросу 14 рабочих дней
Дизайн интерьера (стоимость от 2200руб. за квад.метр площади) по запросу 30 рабочих дней
Внесение изменений в проект по запросу 20 рабочих дней
Фэншуй дома 20 000 ₽ 14 рабочих дней в корзину
Фэншуй участка 15 000 ₽ 14 рабочих дней в корзину
Фэншуй полная консультация дом+участок с выездом на объект 100 000 ₽ 30 рабочих дней в корзину
Опции проекта вы можете заказать в корзине при оформлении заказа
Комплектации
Отзывы покупателей
Рейтинг покупателей
0 / 5 5 5 1
На основе 1 оценок покупателей
0%
0%
0%
0%
0%
Отзывы о проекте D1664
Отзыв о проекте D1664
Чтобы оставить отзыв, пожалуйста авторизуйтесь.
Подбор строительной компании
Не знаете кому доверить строительство дома? Мы можем помочь! Подберем для вас из сотен наших партнеров несколько компаний с лучшем соотношением цена/качество под конкретно ваш запрос.
Подобрать