Главная Проекты домов Проект небольшого дома с террасой и балконом

D122 Проект небольшого дома с террасой и балконом

Сравнить проект В избранное
Проект небольшого дома с террасой и балконом / 1
Проект небольшого дома с террасой и балконом / 2
Проект небольшого дома с террасой и балконом / 3
Проект небольшого дома с террасой и балконом / 1
Проект небольшого дома с террасой и балконом / 2
Проект небольшого дома с террасой и балконом / 3
D122
134 м²
Подготовка проекта:
Готов к отправке
Стоимость проекта
Купить проект
Задайте вопросы по проекту нашему архитектору
8 (800) 200-28-83
Время работы: пн-вс: с 9:00 до 20:00
Задать вопрос по проекту

Технические характеристики
Общие
Материал стен
Брус
Общая площадь
134 м²
Жилая площадь
74.6 м²
Площадь застройки
103.0 м²
Приведенная площадь
114.03 м²
Количество жилых комнат/спален
2
Этажи
1 этаж + мансарда
Гараж
Нет гаража
Подвал / цокольный этаж
Без подвала
Длина дома
9.9 м
Ширина дома
8.3 м
Высота в коньке
8.45 м
Кровля
Гибкая черепица
Облицовка внешних стен
Сайдинг
Толщина несущих наружных стен
150 мм
Межэтажные перекрытия
По деревянным балкам
Внутренние не несущие перегородки
Каркасно-обшивные
Фундамент
Монолитная ж/бетонная плита
Терраса
Терраса открытая
,
Терраса крытая
Дополнительные
Камин
Есть
Сауна/баня внутри
Нет
Площадь гостиной
17.8 м²
Площадь кухни
21.9 м²
Количество санузлов
3
Окно в ванной комнате
Есть
Котельная
Есть
Хозяйская гардеробная
Есть
Кладовая
1
Балкон / лоджия
Балкон
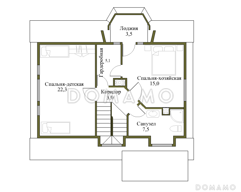
Планы помещений
Фасады
Описание проекта

Компактный деревянный коттедж преимущественно для сезонного проживания с жилой площадью 74,6 кв. м. Классические очертания, традиционный материал (брус 150×150) и большая веранда делают данный проект весьма популярным у любителей загородного отдыха. Удобным и необходимым дополнением внутренних помещений является просторная терраса с входом в кухню-столовую, которую можно объединить с гостиной. Также предусмотрены спальня, прихожая и раздельный санузел. На втором этаже находится хозяйская спальня с входом в гардероб и выходом на лоджию и просторная детская (22,3 кв. м.). Имеется и большая ванная комната. Гардероб общий, но может быть переоборудован в хозяйский. Этажи связывает удобная маршевая лестница.

Категории проекта: с мансардой деревянные для постоянного проживания из бруса дачные дома от 100 до 200 кв.м 8х10 в европейском стиле с эркером с террасой из бруса с мансардой одноэтажные дома из бруса одноэтажные дома из бруса с мансардой европейские дома из профилированного бруса из бруса в немецком стиле из бруса с эркером из бруса с мансардой и эркером готовые из профилированного бруса одноэтажные с мансардой одноэтажные до 150 кв. м. одноэтажные с котельной с котельной одноэтажные деревянные дачные с мансардой дачные с верандой до 150 кв.м до 200 кв.м 6х10 загородные с камином с гардеробной прямоугольные с балконом с эркером и мансардой загородные дома из бруса дачные из бруса Проекты деревянных домов с мансардой Проекты деревянных домов с террасой дачные деревянные Проекты одноэтажных домов с эркером Проекты одноэтажных домов с террасой дачные одноэтажные Типовые проекты загородных одноэтажных домов без гаража одноэтажные без гаража дачные с террасой с террасой и камином дачные с камином из бруса для постоянного проживания с мансардой до 150 кв м с мансардой и террасой полутораэтажные деревянные для круглогодичного проживания дачные с мансардой и верандой одноэтажные с 2 спальнями одноэтажные до 200 кв м до 140 кв м недорогие одноэтажные 8х10 с балконом и террасой с мансардой с котельной с мансардой с камином с мансардой в европейском стиле с мансардой с балконом с мансардой прямоугольные с мансардой готовые с мансардой для постоянного проживания с мансардой до 200 кв.м с мансардой от 100 до 150 кв.м одноэтажные с мансардой из бруса одноэтажные с мансардой для постоянного проживания одноэтажные с мансардой дачные одноэтажные с мансардой с большой кухней одноэтажные с мансардой с изолированной кухней одноэтажные с мансардой в европейском стиле одноэтажные с мансардой с балконом европейские для постоянного проживания европейские дачные европейские недорогие европейские готовые европейские без подвала европейские с террасой европейские с изолированной кухней европейские с котельной европейские с кладовой европейские с балконом европейские прямоугольные европейские с вальмовой крышей европейские с камином европейские до 150 м2 европейские 100-200 м2 европейские 8х10 до 150 кв.м для постоянного проживания до 150 кв.м дачные до 150 кв.м без гаража до 150 кв.м с вальмовой крышей до 150 кв.м готовые до 150 кв.м с балконом до 150 кв.м прямоугольные до 150 кв.м с котельной до 150 кв.м с изолированной кухней до 150 кв.м без бани до 150 кв.м с террасой до 150 кв.м без подвала до 150 кв.м с 2 спальнями до 150 кв.м с большой кухней до 150 кв.м с камином деревянные недорогие деревянные с балконом деревянные прямоугольные деревянные с камином деревянные без гаража деревянные готовые деревянные без подвала деревянные с 2 спальнями деревянные с большой кухней деревянные с изолированной кухней деревянные 8х10 деревянные до 150 кв.м деревянные от 100 до 200 м2 деревянные в европейском стиле недорогие с мансардой недорогие без гаража недорогие с террасой недорогие для постоянного проживания недорогие дачные недорогие с вальмовой крышей недорогие с изолированной кухней недорогие без бани недорогие с котельной недорогие с балконом недорогие с камином недорогие прямоугольные недорогие 8х10 недорогие до 150 м2 недорогие от 100 до 200 м2 из клееного бруса без гаража из бруса готовые из бруса с окном в ванной комнате из бруса с камином из бруса прямоугольные из бруса с балконом из бруса с вальмовой крышей из бруса с фундаментом из монолитной железобетонной плиты с каркасными стенами из бруса с перекрытиями по деревянным балкам из бруса с облицовкой сайдингом из бруса с кровлей из гибкой черепицы из бруса с хозяйской гардеробной из бруса с котельной из бруса без сауны из бруса с крытой террасой из бруса без подвала из бруса без гаража из бруса от 100 до 200 м2 из бруса с большой кухней Показать все категории Скрыть категории

Похожие проекты
Состав проекта
Входит в стоимость
Цена, руб. Сроки, дней
Комплект архитектурно-строительных чертежей (АС) Входит в стоимость Готов к отправке
Готово к продаже
Цена, руб. Сроки, дней
Паспорт рабочего проекта 5 000 ₽ 3 рабочих дня в корзину
Дополнительная копия проекта формата А3 4 000 ₽ Готов к отправке в корзину
Электронная копия проекта (скан распечатанной версии) 4 000 ₽ 3 рабочих дня в корзину
Разрабатывается отдельно
Цена, руб. Сроки, дней
Адаптация фундамента (изменение типа фундамента) по запросу 14 рабочих дней
Дизайн интерьера (стоимость от 2200руб. за квад.метр площади) по запросу 30 рабочих дней
Внесение изменений в проект по запросу 20 рабочих дней
Инженерные разделы: ВК + ОВ + ЭО 40 000 ₽ 20 рабочих дней в корзину
Зеркалирование проекта (для которого нет зеркальной версии) 8 000 ₽ 5 рабочих дней в корзину
Разработка Генплана участка, в масштабе 1:250 7 500 ₽ 5 рабочих дней в корзину
Фэншуй дома 20 000 ₽ 14 рабочих дней в корзину
Фэншуй участка 15 000 ₽ 14 рабочих дней в корзину
Фэншуй полная консультация дом+участок с выездом на объект 100 000 ₽ 30 рабочих дней в корзину
Опции проекта вы можете заказать в корзине при оформлении заказа
Отзывы покупателей
Рейтинг покупателей
0 / 5 5 5 1
На основе 1 оценок покупателей
0%
0%
0%
0%
0%
Отзывы о проекте D122
Отзыв о проекте D122
Чтобы оставить отзыв, пожалуйста авторизуйтесь.
Подбор строительной компании
Не знаете кому доверить строительство дома? Мы можем помочь! Подберем для вас из сотен наших партнеров несколько компаний с лучшем соотношением цена/качество под конкретно ваш запрос.
Подобрать