Главная Проекты домов Проект дома из пеноблоков с площадкой для автомобиля

D1150 Проект дома из пеноблоков с площадкой для автомобиля

Сравнить проект В избранное
Проект дома из пеноблоков с площадкой для автомобиля / 1
Проект дома из пеноблоков с площадкой для автомобиля / 1
D1150
250 м²
Подготовка проекта:
Готов к отправке
Стоимость проекта
Купить проект
Задайте вопросы по проекту нашему архитектору
8 (800) 200-28-83
Время работы: пн-вс: с 9:00 до 20:00
Задать вопрос по проекту

Технические характеристики
Общие
Материал стен
Газобетон
Общая площадь
250 м²
Жилая площадь
135.7 м²
Приведенная площадь
257.95 м²
Количество жилых комнат/спален
4
Этажи
1 этаж + мансарда
Гараж
Пристроенный навес
Количество машин
2
Подвал / цокольный этаж
Без подвала
Длина дома
21.0 м
Ширина дома
19.2 м
Высота в коньке
8.2 м
Кровля
Натуральная черепица
Облицовка внешних стен
Мокрая штукатурка
Толщина несущих наружных стен
375-400 мм
Межэтажные перекрытия
Монолитные
Внутренние не несущие перегородки
Каркасно-обшивные
Фундамент
Монолитная ж/бетонная плита
Терраса
Терраса крытая
Дополнительные
Окна
Окна до пола
,
Панорамные окна
Второй свет
Есть
Мансардные окна
Есть
Камин
Есть
Сауна/баня внутри
Есть
Площадь гостиной
46.5 м²
Площадь кухни
15 м²
Количество санузлов
4
Окно в ванной комнате
Есть
Котельная
Есть
Постирочная
Есть
Хозяйский санузел
Есть
Кладовая
2
Балкон / лоджия
Балкон
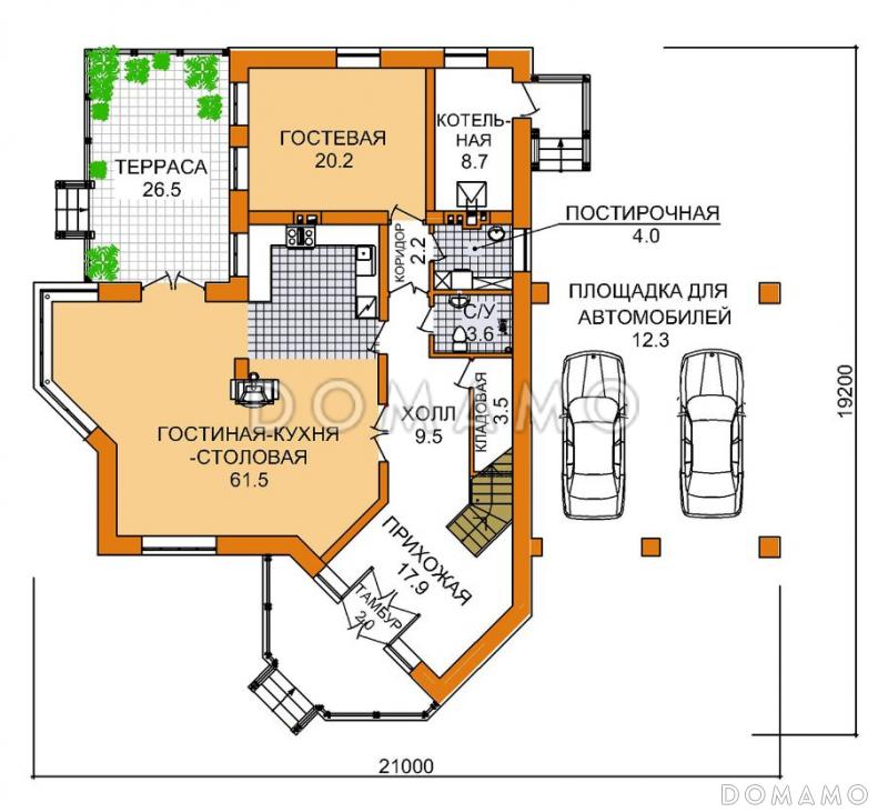
Планы помещений
Фасады
Описание проекта
Необычный двухэтажный коттедж с оригинальным дизайном отлично подойдет для круглогодичного проживания в нем большой семьи. Проект предусматривает наличие в доме трех спален и гостевой комнаты. На первом этаже расположена объединенная в одном помещении гостиная-кухня-столовая, гостевая, а также большая крытая терраса. Гостиная выделяется наличием эркера с панорамным видом на окружающий пейзаж. Здесь же предусмотрен камин. Второй этаж вмещает в себя спальни, в одной из которых расположен выход на балкон, небольшую сауну, подсобное помещение. Панорамные окна делают внешний вид здания более индивидуальным. На территории участка, под пристроенным навесом также находятся парковочные места для двух машин.

Ключевые особенности:
  • Удобная планировка — достаточное количество комнат для проживания большой семьи на небольшой площади.
  • Наличие котельной позволяет жить в коттедже круглый год.
  • Наличие балкона и крытой веранды.
  • Сауна на втором этаже.
  • Панорамные окна.
  • Четыре спальни.
  • Четыре санузла.
  • Необычный внешний дизайн.
Категории проекта: с мансардой с гаражом с мансардой и гаражом для постоянного проживания пенобетон современные от 200 до 300 кв.м в европейском стиле с эркером с террасой из пеноблоков с мансардой из газобетона с мансардой и эркером из газобетона с эркером из газобетона готовые из газобетона с мансардой одноэтажные с гаражом одноэтажные с мансардой одноэтажные с котельной с котельной со вторым светом одноэтажные из газобетона из газосиликатных блоков из пеноблоков с гаражом с баней одноэтажные с гаражом и мансардой загородные из керамзитобетонных блоков с баней и гаражом с камином с сауной с балконом с навесом для машины с панорамным остеклением из газобетона с баней из газобетона с террасой с эркером и мансардой из блоков одноэтажные из блоков из блоков с гаражом из блоков с мансардой из блоков с эркером из пеноблоков с баней Проекты домов из пеноблоков с эркером из пеноблоков с террасой загородные из газобетона Проекты одноэтажных домов с эркером Проекты одноэтажных домов с террасой Типовые проекты загородных одноэтажных домов Проекты одноэтажных домов с баней с террасой и камином с гаражом под одной крышей одноэтажных из керамзитобетонных блоков одноэтажные с 4 спальнями одноэтажные с гаражом и террасой с гаражом на 2 машины с мансардой и террасой полутораэтажные с гаражом и террасой с 4 спальнями с панорамными окнами и террасой с балконом и террасой из пеноблоков загородные от 200 до 250 м сложной формы одноэтажные с мансардными окнами с мансардой с баней с мансардой с котельной с мансардой с камином с мансардой современные с мансардой с панорамными окнами с мансардой с окнами до пола с мансардой со вторым светом с мансардой с мансардными окнами с мансардой с балконом с мансардой сложной формы с мансардой готовые с мансардой для постоянного проживания одноэтажные из газобетона с террасой одноэтажные из газобетона с мансардой одноэтажные из газобетона с 4 спальнями со вторым светом из газобетона от 200 до 300 кв.м из газобетона современные из газобетона с панорамными окнами из газобетона с балконом из газобетона с котельной из газобетона готовые из газобетона с камином из газобетона с большой кухней из газобетона с четырьмя спальнями из газобетона для постоянного проживания из газобетона со вторым светом двухэтажные из газобетона с террасой двухэтажные из газобетона с камином двухэтажные из газобетона с прачечной двухэтажные из газобетона с котельной двухэтажные из газобетона со вторым светом двухэтажные из газобетона современные двухэтажные из газобетона без подвала двухэтажные из газобетона с баней двухэтажные из газобетона с эркером двухэтажные из газобетона с 4 спальнями двухэтажные из газобетона с большой гостиной из газобетона с мансардой современные из газобетона с мансардой с балконом из газобетона с мансардой с террасой из газобетона с мансардой с камином из газобетона с мансардой для постоянного проживания из газобетона с мансардой готовые из газобетона с мансардой с 4 спальнями из газобетона с мансардой с большой кухней из газобетона с мансардой с большой гостиной из газобетона с мансардой с баней из газобетона с мансардой с панорамными окнами из газобетона с мансардой со вторым светом из газобетона с мансардой с прачечной одноэтажные с мансардой для постоянного проживания одноэтажные с мансардой со вторым светом одноэтажные с мансардой с большой кухней одноэтажные с мансардой с панорамными окнами одноэтажные с мансардой современные одноэтажные с мансардой с балконом современные с панорамными окнами современные с окнами в пол современные с террасой современные со вторым светом из пеноблоков в современном стиле из пеноблоков с окнами до пола из пеноблоков с панорамными окнами из пеноблоков с вторым светом из пеноблоков нестандартные из пеноблоков с балконом из пеноблоков для постоянного проживания из пеноблоков готовые из пеноблоков с камином из пеноблоков от 200 до 300 м2 из пеноблоков с 4 спальнями из пеноблоков с большой гостиной из пеноблоков с большой кухней недорогие с мансардой недорогие с террасой недорогие для постоянного проживания недорогие с окнами до пола недорогие с панорамными окнами недорогие с большой гостиной недорогие с баней недорогие с котельной недорогие с мансардными окнами недорогие с вторым светом недорогие с балконом недорогие с камином недорогие сложной формы недорогие от 200 до 300 м2 из клееного бруса без гаража Показать все категории Скрыть категории

Похожие проекты
Состав проекта
Входит в стоимость
Цена, руб. Сроки, дней
Комплект архитектурно-строительных чертежей (АС) Входит в стоимость Готов к отправке
Зеркальная версия проекта Входит в стоимость Готов к отправке
Готово к продаже
Цена, руб. Сроки, дней
Паспорт рабочего проекта 5 000 ₽ Готов к отправке в корзину
Инженерные разделы: ВК + ОВ + ЭО 7 000 ₽ Готов к отправке в корзину
Дополнительная копия проекта формата А3 2 000 ₽ Готов к отправке в корзину
Две дополнительные копии проекта формата А3 + 1 паспорт рабочего проекта 8 000 ₽ Готов к отправке в корзину
Разрабатывается отдельно
Цена, руб. Сроки, дней
Адаптация фундамента (изменение типа фундамента) по запросу 14 рабочих дней
Дизайн интерьера (стоимость от 2200руб. за квад.метр площади) по запросу 30 рабочих дней
Внесение изменений в проект по запросу 20 рабочих дней
Фэншуй дома 20 000 ₽ 14 рабочих дней в корзину
Фэншуй участка 15 000 ₽ 14 рабочих дней в корзину
Фэншуй полная консультация дом+участок с выездом на объект 100 000 ₽ 30 рабочих дней в корзину
Опции проекта вы можете заказать в корзине при оформлении заказа
Предложения строителей Нижегородская область
Минимальная
5 107 410 ₽
Стандарт
6 036 030 ₽
Под чистовую отделку
8 125 425 ₽
Показать подробные комплектации
Сравнить 0 комплектаций
Свернуть все
Развернуть все
Минимальная
5 107 410 ₽
Сравнить
Стандарт
6 036 030 ₽
Сравнить
Под чистовую отделку
8 125 425 ₽
Сравнить
Кровля
Кровельное покрытие
Гибкая черепица
Металлочерепица
Пальцевая кровля
Обрешетка
Контробрешетка
Противоконденсатная (ветро-гидроизоляционная) пленка
Стропильная система
Утепление чердачного перекрытия и стропильной системы
Подшивка свесов кровли
Подшивка потолков террас и лоджий
Водосточная система
Система снегозадержания
Молниезащита
Фундамент
Сваи ж/бетонные
Сваи стальные винтовые
Лента ж/бетонная монолитная мелкозаглубленная
Лента ж/бетонная монолитная на глубину промерзания
Лента ж/бетонная сборная (из ФБС) на глубину промерзания
Плита ж/бетонная монолитная мелкозаглубленная
УШП (Утепленная Шведская Плита)
Бетоннная отмостка по периметру дома
Дренажная система по периметру дома
Ливневая система
Облицовка цоколя фундамента
Система контурного заземления
Стены
Несущая часть стены
Фасадная отделка
Утепление стены
Внутренняя обшивка/штукатурка со стороны помещения
Пол первого этажа
Несущая часть перекрытия
Теплоизоляция цокольного перекрытия
Стяжка/подготовка под чистый пол
Перекрытия над первым и последующими этажами
Несущая часть перекрытия
Звукоизоляция/теплоизоляция в перекрытии
Стяжка/подготовка под чистый пол
Отделка потолка нижележащего этажа
Окна и внешние двери
Окна
Оконные наличники
Откосы в помещении
Отливы снаружи
Подоконники
Входные двери
Внутренние конструкции
Внутренние несущие стены
Внутренние ненесущие стены
Звукоизоляция внутренних стен/перегородок
Межэтажная строительная (черновая) лестница
Межэтажная постоянная (чистовая) лестница
Межкомнатные двери
Высота потолков 1 этажа
Высота потолков 2 этажа
Настилы полов и ограждения крылец, террас, балконов
Гидроизоляция полов балконов
Инженерное оснащение
Жидкостной теплый пол
Электрический теплый пол
Система вентиляции
Только вводы воды, электричества, выводы канализации
Электроразводка и электрощит
Разводка хол. и гор. водоснабжения (ХВС и ГВС)
Разводка батарей и/или системы теплого пола. Без оборудования котельной.
Иное инженерное оснащение
Подготовка участка для строительства
Устройство временного щита электроснабжения
Устройство въезда на участок
Дорога на участке до пятна застройки
Подъем пятна застройки
Подготовка пятна застройки для фундаментных работ
Перемещение или вывоз грунта из котлована фундамента
Обеспечение строительного процесса
Доставка стройматериалов
Генератор для обеспечения электричеством
Уборка и вывоз строительного мусора
Организация проживания рабочих (бытовка)
Биотуалет для рабочих
Гарантия на все выполненные работы
Гарантия
Свернуть
Отзывы покупателей
Рейтинг покупателей
0 / 5 5 5 1
На основе 1 оценок покупателей
0%
0%
0%
0%
0%
Отзывы о проекте D1150
Отзыв о проекте D1150
Чтобы оставить отзыв, пожалуйста авторизуйтесь.
Подбор строительной компании
Не знаете кому доверить строительство дома? Мы можем помочь! Подберем для вас из сотен наших партнеров несколько компаний с лучшем соотношением цена/качество под конкретно ваш запрос.
Подобрать