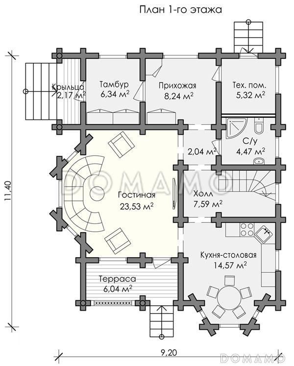
Проектный вариант впечатляющего особняка из цельного бруса под красной натуральной черепицей будоражит своей грациозностью, чем-то отдаленно напоминает свои прототипы в виде русских домов. Сооружение в 171 м2 с тремя входами и жилой мансарду. Нижний этаж занимает гостиная и отдельная кухня-столовая, они идут с эркером, прихожая и санузел, а на втором этаже два санузла, три спальни и балкон, вход на который расположен из хозяйской спальни. Дом вместительный и придётся в пору семье до 6 человек.
отдельный вход в техническое помещение, из него можно попасть в дом;
наличие балкона, позволяющего насладиться со второго этажа красотами природы;
крыльцо-терраса, на ней можно расставить мебель для отдыха;
несколько санузлов и спален позволят принимать гостей с ночевкой, обеспечивая им уют без ущерба для своего комфорта.