Главная Проекты домов Проект дома из газобетона с просторным балконом на втором этаже

D1059 Проект дома из газобетона с просторным балконом на втором этаже

Сравнить проект В избранное
Технические характеристики
Общие
Материал стен
Газобетон
Общая площадь
508 м²
Жилая площадь
209.5 м²
Приведенная площадь
509.3 м²
Количество жилых комнат/спален
5
Этажи
2 этажа + мансарда
Гараж
Нет гаража
Подвал / цокольный этаж
С окнами
Длина дома
19.5 м
Ширина дома
10.5 м
Высота в коньке
11.5 м
Кровля
Натуральная черепица
Облицовка внешних стен
Мокрая штукатурка
,
Облицовочный кирпич
Толщина несущих наружных стен
375-400 мм
Межэтажные перекрытия
Монолитные
Внутренние не несущие перегородки
Каркасно-обшивные
Фундамент
Монолитная ж/бетонная плита
Терраса
Терраса крытая
Дополнительные
Окна
Окна до пола
,
Окна с французским балконом
Мансардные окна
Есть
Камин
Есть
Сауна/баня внутри
Есть
Площадь гостиной
37.2 м²
Площадь кухни
21.4 м²
Количество санузлов
6
Окно в ванной комнате
Есть
Котельная
Есть
Спортзал / детский / игровой зал
Есть
Кладовая
8
Балкон / лоджия
Балкон
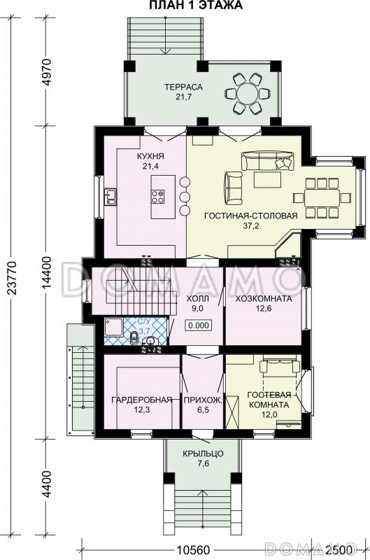
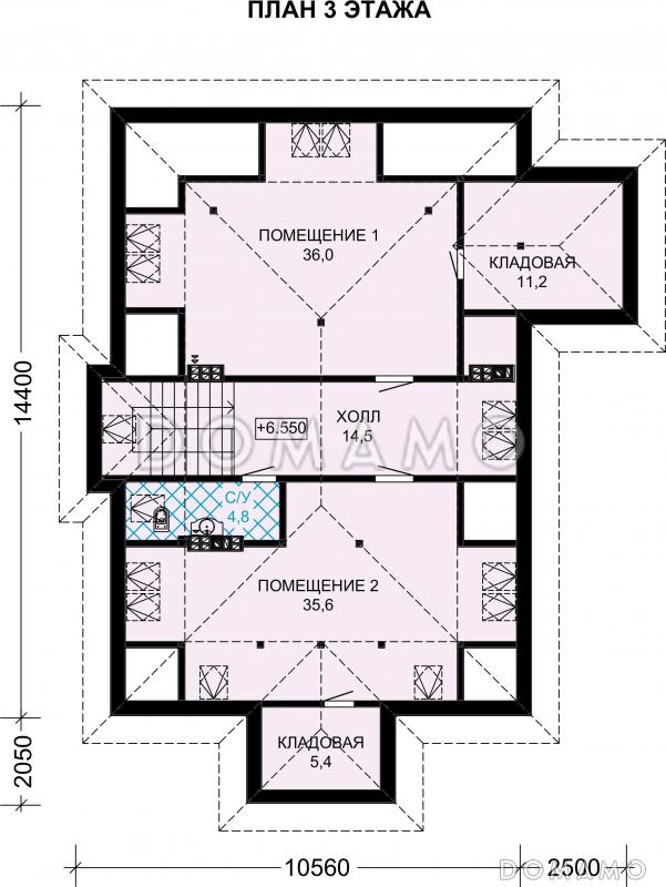
Планы помещений
Фасады
Описание проекта

Добротный особняк в европейском стиле с подвалом и мансардой для семьи из пяти-шести человек. Дом построен из пенобетона, стены облицованы кирпичом, многощипцовая крыша покрыта натуральной черепицей. 

Помещения продуманно и логично распределены по четырем этажам. Подвал используется для шумных хобби – здесь есть и музыкальная комната, и тренажерный зал с сауной. Здесь же расположены котельная и кладовые. Первый этаж традиционно посвящен совместному времяпровождению семейства, также тут размещена и гостевая комната. Четыре спальни, одна из которых с санузлом, находятся на втором этаже. На мансарде предусмотрен санузел, 2 кладовые и два помещения свободного назначения – тут можно организовать пространство на свой вкус, например, сделать бильярдную или комнату отдыха. 

Преимущества и особенности:

  • на площади 508 кв.м все помещения получается сделать просторными,

  • террасы на первом и втором этажах, а также французские окна в спальнях дают возможность проводить больше времени на свежем воздухе,

  • вход в подвал есть как из дома, так и отдельный – с улицы.

Категории проекта: с мансардой для постоянного проживания пенобетон современные от 500 кв.м в европейском стиле с эркером с террасой из пеноблоков с мансардой из газобетона с мансардой и эркером из газобетона с цокольным этажом из газобетона с эркером и цоколем из газобетона с эркером из газобетона готовые из газобетона с мансардой с цокольным этажом двухэтажные двухэтажные с мансардой с котельной двухэтажные из газобетона из газосиликатных блоков двухэтажные из пеноблоков с баней с цокольным этажом и мансардой загородные из керамзитобетонных блоков с камином с сауной прямоугольные с балконом из газобетона с баней из газобетона с террасой двухэтажные с цокольным этажом с эркером и мансардой двухэтажные с эркером из блоков двухэтажные из блоков из блоков с мансардой из блоков с эркером из пеноблоков с баней Проекты домов из пеноблоков с эркером из пеноблоков с цокольным этажом из пеноблоков с террасой загородные из газобетона Проекты двухэтажных домов с террасой Проекты двухэтажных домов с верандой без гаража с террасой и камином облицованные кирпичом с мансардой и террасой особняки двухэтажные с сауной с балконом и террасой из пеноблоков загородные с 5 спальнями большие двухэтажные с камином двухэтажные с балконом двухэтажные с балконом и террасой двухэтажные в современном стиле двухэтажные без гаража с мансардой с баней с мансардой с котельной с мансардой с камином с мансардой современные с мансардой с окнами до пола с мансардой с мансардными окнами с мансардой с балконом с мансардой прямоугольные с мансардой готовые с мансардой для постоянного проживания с мансардой элитные с мансардой большие из газобетона от 500 кв.м из газобетона современные из газобетона с балконом из газобетона с котельной из газобетона прямоугольные из газобетона готовые из газобетона с камином из газобетона с большой кухней из газобетона большие из газобетона для постоянного проживания двухэтажные из газобетона большие из газобетона с мансардой современные из газобетона с мансардой с балконом из газобетона с мансардой с террасой из газобетона с мансардой с камином из газобетона с мансардой для постоянного проживания из газобетона с мансардой готовые из газобетона с мансардой большие из газобетона с мансардой с большой кухней из газобетона с мансардой с баней из газобетона с мансардой прямоугольные современные без гаража современные с окнами в пол современные с террасой современные большие современные с подвалом большие готовые большие с балконом большие прямоугольные большие с камином большие с окном в ванной комнате большие с окнами в пол большие без гаража большие с большой кухней большие с террасой большие с баней большие с котельной большие с спортзалом из пеноблоков в современном стиле из пеноблоков с окнами до пола из пеноблоков прямоугольные из пеноблоков с балконом из пеноблоков для постоянного проживания из пеноблоков готовые из пеноблоков с камином из пеноблоков от 500 м2 из пеноблоков большие из пеноблоков с большой кухней из клееного бруса без гаража Показать все категории Скрыть категории

Похожие проекты
Состав проекта
Входит в стоимость
Цена, руб. Сроки, дней
Комплект архитектурно-строительных чертежей (АС) Входит в стоимость 3 рабочих дня
Готово к продаже
Цена, руб. Сроки, дней
Зеркальная версия проекта Входит в стоимость 3 рабочих дня
Паспорт рабочего проекта 5 000 ₽ 3 рабочих дня в корзину
Инженерные разделы: ВК + ОВ + ЭО 25 000 ₽ 3 рабочих дня в корзину
Дополнительная копия проекта формата А3 5 000 ₽ 3 рабочих дня в корзину
Две дополнительные копии проекта формата А3 + 1 паспорт рабочего проекта 10 100 ₽ 3 рабочих дня в корзину
Электронная копия проекта (скан распечатанной версии) 4 000 ₽ 3 рабочих дня в корзину
Разрабатывается отдельно
Цена, руб. Сроки, дней
Адаптация фундамента (изменение типа фундамента) по запросу 14 рабочих дней
Дизайн интерьера (стоимость от 2200руб. за квад.метр площади) по запросу 30 рабочих дней
Внесение изменений в проект по запросу 20 рабочих дней
Фэншуй дома 20 000 ₽ 14 рабочих дней в корзину
Фэншуй участка 15 000 ₽ 14 рабочих дней в корзину
Фэншуй полная консультация дом+участок с выездом на объект 100 000 ₽ 30 рабочих дней в корзину
Опции проекта вы можете заказать в корзине при оформлении заказа
Варианты проекта Сравнить все варианты
Избранные проекты
Избранные строители
Предложения строителей Выбрать регион
Минимальная
17 316 200 ₽
Стандарт
21 390 600 ₽
Под чистовую отделку
28 011 500 ₽
Показать подробные комплектации
Сравнить 0 комплектаций
Свернуть все
Развернуть все
Минимальная
17 316 200 ₽
Сравнить
Стандарт
21 390 600 ₽
Сравнить
Под чистовую отделку
28 011 500 ₽
Сравнить
Кровля
Кровельное покрытие
Обрешетка
Контробрешетка
Противоконденсатная (ветро-гидроизоляционная) пленка
Стропильная система
Утепление чердачного перекрытия и стропильной системы
Подшивка свесов кровли
Подшивка потолков террас и лоджий
Водосточная система
Система снегозадержания
Молниезащита
Фундамент
Сваи ж/бетонные
Сваи стальные винтовые
Лента ж/бетонная монолитная мелкозаглубленная
Лента ж/бетонная монолитная на глубину промерзания
Лента ж/бетонная сборная (из ФБС) на глубину промерзания
Плита ж/бетонная монолитная мелкозаглубленная
УШП (Утепленная Шведская Плита)
Бетоннная отмостка по периметру дома
Дренажная система по периметру дома
Ливневая система
Облицовка цоколя фундамента
Система контурного заземления
Стены
Несущая часть стены
Фасадная отделка
Утепление стены
Внутренняя обшивка/штукатурка со стороны помещения
Пол первого этажа
Несущая часть перекрытия
Теплоизоляция цокольного перекрытия
Стяжка/подготовка под чистый пол
Перекрытия над первым и последующими этажами
Несущая часть перекрытия
Звукоизоляция/теплоизоляция в перекрытии
Стяжка/подготовка под чистый пол
Отделка потолка нижележащего этажа
Окна и внешние двери
Окна
Оконные наличники
Откосы в помещении
Отливы снаружи
Подоконники
Входные двери
Внутренние конструкции
Внутренние несущие стены
Внутренние ненесущие стены
Звукоизоляция внутренних стен/перегородок
Межэтажная строительная (черновая) лестница
Межэтажная постоянная (чистовая) лестница
Межкомнатные двери
Высота потолков 1 этажа
3 м
3 м
Высота потолков 2 этажа
Настилы полов и ограждения крылец, террас, балконов
Гидроизоляция полов балконов
Инженерное оснащение
Жидкостной теплый пол
Электрический теплый пол
Система вентиляции
Только вводы воды, электричества, выводы канализации
Электроразводка и электрощит
Разводка хол. и гор. водоснабжения (ХВС и ГВС)
Разводка батарей и/или системы теплого пола. Без оборудования котельной.
Иное инженерное оснащение
Подготовка участка для строительства
Устройство временного щита электроснабжения
Устройство въезда на участок
Дорога на участке до пятна застройки
Подъем пятна застройки
Подготовка пятна застройки для фундаментных работ
Перемещение или вывоз грунта из котлована фундамента
Обеспечение строительного процесса
Доставка стройматериалов
Генератор для обеспечения электричеством
Уборка и вывоз строительного мусора
Организация проживания рабочих (бытовка)
Биотуалет для рабочих
Гарантия на все выполненные работы
Гарантия
Свернуть
Минимальная
40 693 070 ₽
Стандарт
47 874 200 ₽
Под чистовую отделку
62 236 460 ₽
Показать подробные комплектации
Сравнить 0 комплектаций
Свернуть все
Развернуть все
Минимальная
40 693 070 ₽
Сравнить
Стандарт
47 874 200 ₽
Сравнить
Под чистовую отделку
62 236 460 ₽
Сравнить
Кровля
Кровельное покрытие
Металлочерепица «Металл Профиль»
Металлочерепица «Металл Профиль»
Металлочерепица «Металл Профиль»
Обрешетка
Доска 20х95 мм, сухая, строганная
Доска 20х95 мм, сухая, строганная
Доска 20х95 мм, сухая, строганная
Контробрешетка
Брус 45х45 мм, сухой, строганный
Брус 45х45 мм, сухой, строганный
Брус 45х45 мм, сухой, строганный
Противоконденсатная (ветро-гидроизоляционная) пленка
Стропильная система
Заводского изготовления. Доска 45х195 мм
Заводского изготовления. Доска 45х195 мм
Заводского изготовления. Доска 45х195 мм
Утепление чердачного перекрытия и стропильной системы
Базальтовый утеплитель Paroc Extra 250 мм
Базальтовый утеплитель Paroc Extra 250 мм
Подшивка свесов кровли
Подшивка потолков террас и лоджий
Водосточная система
Система снегозадержания
Молниезащита
Фундамент
Сваи ж/бетонные
Сваи стальные винтовые
Лента ж/бетонная монолитная мелкозаглубленная
Лента ж/бетонная монолитная на глубину промерзания
Лента ж/бетонная сборная (из ФБС) на глубину промерзания
Плита ж/бетонная монолитная мелкозаглубленная
Высота цоколя 350 мм
Высота цоколя 350 мм
Высота цоколя 350 мм
УШП (Утепленная Шведская Плита)
Бетоннная отмостка по периметру дома
Дренажная система по периметру дома
Ливневая система
Облицовка цоколя фундамента
Система контурного заземления
Стены
Несущая часть стены
Газобетон Ytong 300х250х625 мм
Газобетон Ytong 300х250х625 мм
Газобетон Ytong 300х250х625 мм
Фасадная отделка
Силикатная штукатурка
Лицевой кирпич
Утепление стены
Базальтовый утеплитель ROCKWOOL Фасад Баттс 1200х600х50
Базальтовый утеплитель ROCKWOOL Фасад Баттс 1200х600х50
Внутренняя обшивка/штукатурка со стороны помещения
Пол первого этажа
Несущая часть перекрытия
Теплоизоляция цокольного перекрытия
Стяжка/подготовка под чистый пол
OSB-3 18 мм
Перекрытия над первым и последующими этажами
Несущая часть перекрытия
Монолитные ж/б перекрытия 180-200 мм
Монолитные ж/б перекрытия 180-200 мм
Монолитные ж/б перекрытия 180-200 мм
Звукоизоляция/теплоизоляция в перекрытии
Базальтовый утеплитель 150 мм
Стяжка/подготовка под чистый пол
OSB-3 18 мм
Отделка потолка нижележащего этажа
Окна и внешние двери
Окна
VEKA Softline 70 мм
VEKA Softline 70 мм
Оконные наличники
Откосы в помещении
Отливы снаружи
Подоконники
Входные двери
Jeld-Wen
Jeld-Wen
Внутренние конструкции
Внутренние несущие стены
Газобетон Ytong D400 250х250х625
Газобетон Ytong D400 250х250х625
Газобетон Ytong D400 250х250х625
Внутренние ненесущие стены
Звукоизоляция внутренних стен/перегородок
Межэтажная строительная (черновая) лестница
Маршевая
Маршевая
Маршевая
Межэтажная постоянная (чистовая) лестница
Межкомнатные двери
Высота потолков 1 этажа
2700 мм
2700 мм
2700 мм
Высота потолков 2 этажа
2500 мм
2500 мм
2500 мм
Настилы полов и ограждения крылец, террас, балконов
Гидроизоляция полов балконов
Инженерное оснащение
Жидкостной теплый пол
Электрический теплый пол
Система вентиляции
Только вводы воды, электричества, выводы канализации
Электроразводка и электрощит
Разводка хол. и гор. водоснабжения (ХВС и ГВС)
Разводка батарей и/или системы теплого пола. Без оборудования котельной.
Иное инженерное оснащение
Подготовка участка для строительства
Устройство временного щита электроснабжения
Устройство въезда на участок
Дорога на участке до пятна застройки
Подъем пятна застройки
Подготовка пятна застройки для фундаментных работ
Перемещение или вывоз грунта из котлована фундамента
Обеспечение строительного процесса
Доставка стройматериалов
50 км от КАД, МКАД
50 км от КАД, МКАД
50 км от КАД, МКАД
Генератор для обеспечения электричеством
Уборка и вывоз строительного мусора
Организация проживания рабочих (бытовка)
Биотуалет для рабочих
Гарантия на все выполненные работы
Гарантия
5 лет
5 лет
5 лет
Свернуть
Минимальная
18 156 545 ₽
Стандарт
26 941 969 ₽
Под чистовую отделку
42 755 735 ₽
Показать подробные комплектации
Сравнить 0 комплектаций
Свернуть все
Развернуть все
Минимальная
18 156 545 ₽
Сравнить
Стандарт
26 941 969 ₽
Сравнить
Под чистовую отделку
42 755 735 ₽
Сравнить
Кровля
Кровельное покрытие
Металлочерепица Grand Line 0,5мм/ битумная черепица Шинглас
Металлочерепица Grand Line 0,5мм/ битумная черепица Шинглас
Металлочерепица Grand Line 0,5мм/ битумная черепица Шинглас
Обрешетка
Доска 100х25 с обработкой огнебиозащитой
Доска 100х25 с обработкой огнебиозащитой
Доска 100х25 с обработкой огнебиозащитой
Контробрешетка
Брусок 50х50 с обработкой огнебиозащитой
Брусок 50х50 с обработкой огнебиозащитой
Брусок 50х50 с обработкой огнебиозащитой
Противоконденсатная (ветро-гидроизоляционная) пленка
3-х слойная мембрана
3-х слойная мембрана
3-х слойная мембрана
Стропильная система
Доска 200х50 с обработкой огнебиозащитой
Доска 200х50 с обработкой огнебиозащитой
Доска 200х50 с обработкой огнебиозащитой
Утепление чердачного перекрытия и стропильной системы
Утеплитель Rockwool Лайт Баттс Скандик 200мм
Утеплитель Rockwool Лайт Баттс Скандик 200мм
Подшивка свесов кровли
Софит пластиковый Grand Line
Софит пластиковый Grand Line
Подшивка потолков террас и лоджий
Имитация бруса 145мм
Водосточная система
Водосточная система пластиковая Grand Line
Водосточная система пластиковая Grand Line
Система снегозадержания
Снегозадержатели трубчатые
Снегозадержатели трубчатые
Молниезащита
Фундамент
Сваи ж/бетонные
Сваи стальные винтовые
Лента ж/бетонная монолитная мелкозаглубленная
Лента ж/бетонная монолитная на глубину промерзания
Лента ж/бетонная сборная (из ФБС) на глубину промерзания
Плита ж/бетонная монолитная мелкозаглубленная
Монолитная железобетонная плита 300мм с утеплением и ги
Монолитная железобетонная плита 300мм с утеплением и ги
Монолитная железобетонная плита 300мм с утеплением и ги
УШП (Утепленная Шведская Плита)
Бетоннная отмостка по периметру дома
Утепленная отмостка по периметру дома
Дренажная система по периметру дома
Дренажная система с смотровыми колодцами
Ливневая система
Ливневая система с отводом дождевой воды
Облицовка цоколя фундамента
Облицовка цоколя камнем
Система контурного заземления
Стены
Несущая часть стены
Газобетонные блоки d500 Bonolit 375мм
Газобетонные блоки d500 Bonolit 375мм
Газобетонные блоки d500 Bonolit 375мм
Фасадная отделка
Облицовка кирпичом Braer
Облицовка кирпичом Braer
Утепление стены
Внутренняя обшивка/штукатурка со стороны помещения
Штукатурка стен
Пол первого этажа
Несущая часть перекрытия
Пол первого этажа - фундаментная плита
Пол первого этажа - фундаментная плита
Пол первого этажа - фундаментная плита
Теплоизоляция цокольного перекрытия
Утепление пенополистиролом 100мм над плитой
Стяжка/подготовка под чистый пол
Стяжка полов 80мм
Перекрытия над первым и последующими этажами
Несущая часть перекрытия
Монолитная железобетонная плита 180мм
Монолитная железобетонная плита 180мм
Монолитная железобетонная плита 180мм
Звукоизоляция/теплоизоляция в перекрытии
Стяжка/подготовка под чистый пол
Стяжка полов 80мм
Отделка потолка нижележащего этажа
Штукатурка потолков
Окна и внешние двери
Окна
Пластиковые окна REHAU GRAZIO 70мм, двухкамерный стеклопакет
Пластиковые окна REHAU GRAZIO 70мм, двухкамерный стеклопакет
Оконные наличники
Откосы в помещении
Штукатурка откосов
Отливы снаружи
Металлические оконный отливы
Металлические оконный отливы
Подоконники
Подоконники ПВХ
Входные двери
Входная утепленная дверь Torex
Входная утепленная дверь Torex
Внутренние конструкции
Внутренние несущие стены
Газобетонный блок d500 300мм
Газобетонный блок d500 300мм
Газобетонный блок d500 300мм
Внутренние ненесущие стены
Газобетонный блок d500 100мм
Газобетонный блок d500 100мм
Звукоизоляция внутренних стен/перегородок
Межэтажная строительная (черновая) лестница
Межэтажная постоянная (чистовая) лестница
Монолитная железобетонная лестница
Монолитная железобетонная лестница
Межкомнатные двери
Высота потолков 1 этажа
3 метра
3 метра
3 метра
Высота потолков 2 этажа
2,8 метра
2,8 метра
2,8 метра
Настилы полов и ограждения крылец, террас, балконов
Гидроизоляция полов балконов
Оклеечная гидроизоляция
Оклеечная гидроизоляция
Инженерное оснащение
Жидкостной теплый пол
Электрический теплый пол
Система вентиляции
Разводка систем вентиляции
Только вводы воды, электричества, выводы канализации
Ввод всех коммуникаций
Ввод всех коммуникаций
Ввод всех коммуникаций
Электроразводка и электрощит
Разводка электрики
Разводка хол. и гор. водоснабжения (ХВС и ГВС)
Разводка ХВС и ГВС
Разводка батарей и/или системы теплого пола. Без оборудования котельной.
Разводка отопления
Иное инженерное оснащение
Подготовка участка для строительства
Устройство временного щита электроснабжения
Устройство въезда на участок
Дорога на участке до пятна застройки
Подъем пятна застройки
Подготовка пятна застройки для фундаментных работ
Устройство песчаного основания с проливкой трамбовко
Устройство песчаного основания с проливкой трамбовко
Устройство песчаного основания с проливкой трамбовко
Перемещение или вывоз грунта из котлована фундамента
Перемещение по участку
Перемещение по участку
Перемещение по участку
Обеспечение строительного процесса
Доставка стройматериалов
Контроль поставки и качества материалов
Контроль поставки и качества материалов
Контроль поставки и качества материалов
Генератор для обеспечения электричеством
Уборка и вывоз строительного мусора
Уборка и вывоз строительного мусора
Уборка и вывоз строительного мусора
Уборка и вывоз строительного мусора
Организация проживания рабочих (бытовка)
Доставка и вывоз бытового помещения
Доставка и вывоз бытового помещения
Биотуалет для рабочих
Доставка, обслуживание и вывоз биотуалета
Доставка, обслуживание и вывоз биотуалета
Гарантия на все выполненные работы
Гарантия
10 лет
10 лет
10 лет
Свернуть
Минимальная
17 825 500 ₽
Стандарт
21 390 600 ₽
Под чистовую отделку
23 937 100 ₽
Показать подробные комплектации
Сравнить 0 комплектаций
Свернуть все
Развернуть все
Минимальная
17 825 500 ₽
Сравнить
Стандарт
21 390 600 ₽
Сравнить
Под чистовую отделку
23 937 100 ₽
Сравнить
Кровля
Кровельное покрытие
Мететаллочерепица Grand Line
Мететаллочерепица Grand Line / мягкая кровля SHINGLAS
Мететаллочерепица Grand Line / мягкая кровля SHINGLAS / цементн
Обрешетка
Доска обрезная 25-100
Доска обрезная 25-100
Доска обрезная 25-100
Контробрешетка
Брусок 50х50
Брусок 50х50
Брусок 50х50
Противоконденсатная (ветро-гидроизоляционная) пленка
Isospan
Isospan
Isospan
Стропильная система
Доска обрезная 50х200 с пропиткой
Доска обрезная 50х200 с пропиткой
Доска обрезная 50х200 с пропиткой
Утепление чердачного перекрытия и стропильной системы
Минеральная вата Технониколь
Минеральная вата Технониколь
Минеральная вата Технониколь
Подшивка свесов кровли
AQUASYSTEM
AQUASYSTEM
Подшивка потолков террас и лоджий
AQUASYSTEM
AQUASYSTEM
Водосточная система
AQUASYSTEM
Система снегозадержания
GrandLine
Молниезащита
Torr
Фундамент
Сваи ж/бетонные
150*150
Сваи стальные винтовые
Лента ж/бетонная монолитная мелкозаглубленная
700*400 мм
700*400 мм
Лента ж/бетонная монолитная на глубину промерзания
Лента ж/бетонная сборная (из ФБС) на глубину промерзания
Плита ж/бетонная монолитная мелкозаглубленная
200 мм
УШП (Утепленная Шведская Плита)
Бетоннная отмостка по периметру дома
100*7000 мм
Дренажная система по периметру дома
Ливневая система
Облицовка цоколя фундамента
Система контурного заземления
Torr
Стены
Несущая часть стены
Газобетон Bonolit 400 D400
Газобетон Bonolit 400 D400
Газобетон Bonolit 400 D400
Фасадная отделка
Штукатурка
Кирпич
Утепление стены
Внутренняя обшивка/штукатурка со стороны помещения
Пол первого этажа
Несущая часть перекрытия
пустотные плиты
пустотные плиты
монолитная плита
Теплоизоляция цокольного перекрытия
Пеноплекс 50 мм
Пеноплекс 50 мм
Пеноплекс 50 мм
Стяжка/подготовка под чистый пол
Перекрытия над первым и последующими этажами
Несущая часть перекрытия
Деревянное переркрытие
Пустотные плиты
Монолитное перекрытие
Звукоизоляция/теплоизоляция в перекрытии
Стяжка/подготовка под чистый пол
Отделка потолка нижележащего этажа
Окна и внешние двери
Окна
REHAU DELIGHT-Design профиль 70мм
Оконные наличники
Откосы в помещении
Отливы снаружи
Подоконники
Входные двери
Дверь входная с термо-разрывом входная
Внутренние конструкции
Внутренние несущие стены
Газобетон 250 мм Bonolit
Газобетон 250 мм Bonolit
Газобетон 250 мм Bonolit
Внутренние ненесущие стены
Газобетон 100 мм Bonolit
Газобетон 100 мм Bonolit
Звукоизоляция внутренних стен/перегородок
Межэтажная строительная (черновая) лестница
есть
есть
есть
Межэтажная постоянная (чистовая) лестница
есть
Межкомнатные двери
Высота потолков 1 этажа
3000
3250
3250
Высота потолков 2 этажа
2750
3000
3250
Настилы полов и ограждения крылец, террас, балконов
Гидроизоляция полов балконов
есть
Инженерное оснащение
Жидкостной теплый пол
по выбору
Электрический теплый пол
по выбору
Система вентиляции
есть
Только вводы воды, электричества, выводы канализации
Электроразводка и электрощит
Разводка хол. и гор. водоснабжения (ХВС и ГВС)
Разводка батарей и/или системы теплого пола. Без оборудования котельной.
Иное инженерное оснащение
Подготовка участка для строительства
Устройство временного щита электроснабжения
Устройство въезда на участок
Дорога на участке до пятна застройки
Подъем пятна застройки
Подготовка пятна застройки для фундаментных работ
Перемещение или вывоз грунта из котлована фундамента
Обеспечение строительного процесса
Доставка стройматериалов
Генератор для обеспечения электричеством
Уборка и вывоз строительного мусора
Организация проживания рабочих (бытовка)
Биотуалет для рабочих
Гарантия на все выполненные работы
Гарантия
3 года
3 года
3 года
Свернуть
Минимальная
16 438 166 ₽
Стандарт
24 125 541 ₽
Под чистовую отделку
25 811 324 ₽
Показать подробные комплектации
Сравнить 0 комплектаций
Свернуть все
Развернуть все
Минимальная
16 438 166 ₽
Сравнить
Стандарт
24 125 541 ₽
Сравнить
Под чистовую отделку
25 811 324 ₽
Сравнить
Кровля
Кровельное покрытие
Металочерепица Grand Line
Металочерепица Grand Line
Металочерепица Grand Line
Обрешетка
Доска 100х25, обработанная огне-биозащит
Доска 100х25, обработанная огне-биозащит
Доска 100х25, обработанная огне-биозащит
Контробрешетка
Брус 45х45, обработанный огне-биозащитн
Брус 45х45, обработанный огне-биозащитн
Брус 45х45, обработанный огне-биозащитн
Противоконденсатная (ветро-гидроизоляционная) пленка
Ветро - гидрозащита Изоспан АМ
Ветро - гидрозащита Изоспан АМ
Ветро - гидрозащита Изоспан АМ
Стропильная система
Доска 200х50, обработанная огне-биозащит
Доска 200х50, обработанная огне-биозащит
Доска 200х50, обработанная огне-биозащит
Утепление чердачного перекрытия и стропильной системы
Утеплитель минеральной ватой Rocwool Лай
Утеплитель минеральной ватой Rocwool Лай
Подшивка свесов кровли
ПВХ перфорированный софит Doce
ПВХ перфорированный софит Doce
Подшивка потолков террас и лоджий
ПВХ перфорированный софит Doce
ПВХ перфорированный софит Doce
Водосточная система
Водосточная система Doce
Система снегозадержания
Трубчатый снегозадержатель
Молниезащита
Фундамент
Сваи ж/бетонные
Сваи стальные винтовые
Лента ж/бетонная монолитная мелкозаглубленная
Лента ж/бетонная монолитная на глубину промерзания
Лента ж/бетонная сборная (из ФБС) на глубину промерзания
Плита ж/бетонная монолитная мелкозаглубленная
Монолитная плита толщиной 300мм. Армиро
Монолитная плита толщиной 300мм. Армиро
Монолитная плита толщиной 300мм. Армиро
УШП (Утепленная Шведская Плита)
Бетоннная отмостка по периметру дома
Утеплённая отмостка 100мм. Шириной 1 мет
Утеплённая отмостка 100мм. Шириной 1 мет
Дренажная система по периметру дома
Дренажная труба 100мм. Включая смотровы
Дренажная труба 100мм. Включая смотровы
Ливневая система
Облицовка цоколя фундамента
Утеплённый цоколь Облицованный декор
Система контурного заземления
Стены
Несущая часть стены
Газосиликатный Блок Bonolit D400 толщиной 40
Газосиликатный Блок Bonolit D400 толщиной 40
Газосиликатный Блок Bonolit D400 толщиной 40
Фасадная отделка
Облицовочный кирпич Терекс
Утепление стены
Внутренняя обшивка/штукатурка со стороны помещения
Пол первого этажа
Несущая часть перекрытия
Монолитная плита
Монолитная плита
Монолитная плита
Теплоизоляция цокольного перекрытия
Стяжка/подготовка под чистый пол
Перекрытия над первым и последующими этажами
Несущая часть перекрытия
Пустотные Ж/Б плиты перекрытия
Пустотные Ж/Б плиты перекрытия
Пустотные Ж/Б плиты перекрытия
Звукоизоляция/теплоизоляция в перекрытии
Стяжка/подготовка под чистый пол
Отделка потолка нижележащего этажа
Окна и внешние двери
Окна
REHAU Blitz ** 60 мм, стеклопакеты 3 камеры
REHAU Blitz ** 60 мм, стеклопакеты 3 камеры
REHAU Blitz ** 60 мм, стеклопакеты 3 камеры
Оконные наличники
Откосы в помещении
Отливы снаружи
Подоконники
Входные двери
Внутренние конструкции
Внутренние несущие стены
Газосиликатный Блок Bonolit D400 толщиной 30
Газосиликатный Блок Bonolit D400 толщиной 30
Газосиликатный Блок Bonolit D400 толщиной 30
Внутренние ненесущие стены
Звукоизоляция внутренних стен/перегородок
Межэтажная строительная (черновая) лестница
Межэтажная постоянная (чистовая) лестница
Бетонная армированная лестница
Межкомнатные двери
Высота потолков 1 этажа
Высота потолков 2 этажа
Настилы полов и ограждения крылец, террас, балконов
Гидроизоляция полов балконов
Двойная гидроизоляция ХПП
Инженерное оснащение
Жидкостной теплый пол
Электрический теплый пол
Система вентиляции
Только вводы воды, электричества, выводы канализации
Электроразводка и электрощит
Разводка хол. и гор. водоснабжения (ХВС и ГВС)
Разводка батарей и/или системы теплого пола. Без оборудования котельной.
Иное инженерное оснащение
Подготовка участка для строительства
Устройство временного щита электроснабжения
Устройство въезда на участок
Дорога на участке до пятна застройки
Подъем пятна застройки
Подготовка пятна застройки для фундаментных работ
Перемещение или вывоз грунта из котлована фундамента
Обеспечение строительного процесса
Доставка стройматериалов
Доставка и разгрузка строительных мат
Доставка и разгрузка строительных мат
Доставка и разгрузка строительных мат
Генератор для обеспечения электричеством
Уборка и вывоз строительного мусора
Организация проживания рабочих (бытовка)
Обеспечение рабочих строительным гор
Обеспечение рабочих строительным гор
Обеспечение рабочих строительным гор
Биотуалет для рабочих
Гарантия на все выполненные работы
Гарантия
5 лет
5 лет
5 лет
Свернуть
Подбор строительной компании
Не знаете кому доверить строительство дома? Мы можем помочь! Подберем для вас из сотен наших партнеров несколько компаний с лучшем соотношением цена/качество под конкретно ваш запрос.
Подобрать
Отзывы покупателей
Рейтинг покупателей
0 / 5 5 5 1
На основе 1 оценок покупателей
0%
0%
0%
0%
0%
Отзывы о проекте D1059
Отзыв о проекте D1059
Чтобы оставить отзыв, пожалуйста авторизуйтесь.
Подбор строительной компании
Не знаете кому доверить строительство дома? Мы можем помочь! Подберем для вас из сотен наших партнеров несколько компаний с лучшем соотношением цена/качество под конкретно ваш запрос.
Подобрать