Главная Проекты домов Проект двухэтажного коттеджа с террасой и двухцветной облицовкой

D1024 Проект двухэтажного коттеджа с террасой и двухцветной облицовкой

Сравнить проект В избранное
Технические характеристики
Общие
Материал стен
Газобетон
Общая площадь
112 м²
Жилая площадь
62 м²
Площадь застройки
108 м²
Приведенная площадь
118.15 м²
Количество жилых комнат/спален
4
Этажи
2 этажа
Гараж
Нет гаража
Подвал / цокольный этаж
Без подвала
Длина дома
10.3 м
Ширина дома
8 м
Высота в коньке
9.4 м
Кровля
Гибкая черепица
Облицовка внешних стен
Облицовочный кирпич
Толщина несущих наружных стен
375 мм
Межэтажные перекрытия
Сборные
Внутренние не несущие перегородки
Газобетонные
Фундамент
Свайный
Терраса
Терраса крытая
Дополнительные
Окна
Панорамные окна
Сауна/баня внутри
Нет
Площадь кухни
27.3 м²
Количество санузлов
2
Окно в ванной комнате
Есть
Котельная
Есть
Кабинет
Есть
Кладовая
2
Дом для неровных участков (с рельефом)
Есть
Дом для узких участков
Есть
Балкон / лоджия
Балкон
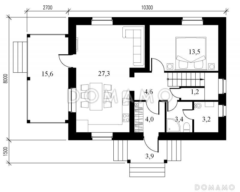
Планы помещений
Фасады
Описание проекта

В проекте - четыре хорошие (по 13-15м2) жилые комнаты. Газобетонные стены с утеплением (при необходимости). 

Терраса - приятно дополнит набор помещений. Выход из кухни делает удобными летние чаепития/обеды, и дает прямой доступ из кухни на участок.

На 2-ом этаже запроектирована гардеробная, с необычным окном под потолком. Дом хорош наличием полноценной кирпичной облицовки. 

Свайный фундамент (неглубокие буронабивные сваи) позволит не тратить лишние деньги на земляные работы.


Категории проекта: для постоянного проживания пенобетон для узких участков от 100 до 200 кв.м 8х10 с террасой из газобетона готовые двухэтажные с котельной двухэтажные из газобетона из газосиликатных блоков двухэтажные из пеноблоков до 120 кв.м до 150 кв.м до 200 кв.м с двухскатной крышей 6х10 загородные из керамзитобетонных блоков узкие прямоугольные с балконом с панорамным остеклением в русском стиле в стиле эклектика из газобетона с террасой из блоков двухэтажные из блоков из пеноблоков с террасой загородные из газобетона Проекты двухэтажных домов с террасой Проекты двухэтажных домов с верандой без гаража облицованные кирпичом с кабинетом на склоне двухэтажные до 150 кв м двухэтажные 200 кв м с 4 спальнями с панорамными окнами и террасой до 140 кв м недорогие до 130 кв м двухэтажные до 130 кв.м с балконом и террасой узкие двухэтажные из пеноблоков загородные двухэтажные до 120 кв.м двухэтажные до 180 кв.м двухэтажные с двускатной крышей двухэтажные с панорамными окнами двухэтажные с 4 спальнями двухэтажные с балконом двухэтажные с балконом и террасой двухэтажные до 150 кв.м с террасой двухэтажные без гаража с мансардой в русском стиле из газобетона до 120 кв.м из газобетона до 150 кв.м из газобетона до 200 кв.м из газобетона от 100 до 200 кв.м из газобетона с двухскатной крышей из газобетона с панорамными окнами из газобетона с балконом из газобетона с котельной из газобетона прямоугольные из газобетона готовые из газобетона с большой кухней из газобетона с четырьмя спальнями из газобетона с кабинетом из газобетона для узких участков из газобетона для неровных участков из газобетона 8х10 из газобетона узкие из газобетона для постоянного проживания двухэтажные из газобетона без гаража двухэтажные из газобетона с террасой двухэтажные из газобетона с кабинетом двухэтажные из газобетона с котельной двухэтажные из газобетона с двухскатной крышей двухэтажные из газобетона для узких участков двухэтажные из газобетона маленькие двухэтажные из газобетона до 120 кв. м двухэтажные из газобетона до 150 кв. м двухэтажные из газобетона до 200 кв. м двухэтажные из газобетона для неровных участков двухэтажные из газобетона без подвала двухэтажные из газобетона с 4 спальнями до 120 кв.м готовые до 120 кв.м для постоянного проживания до 120 кв.м без гаража до 120 кв.м с двухскатной крышей до 120 кв.м с панорамными окнами до 120 кв.м с террасой до 120 кв.м в русском стиле до 120 кв.м эклектика до 120 кв.м с котельной до 120 кв.м с кабинетом до 120 кв.м с 4 спальнями до 120 кв.м с большой кухней до 120 кв.м прямоугольные до 120 кв.м с балконом до 120 кв.м 8х10 до 150 кв.м для постоянного проживания до 150 кв.м без гаража до 150 кв.м с двухскатной крышей до 150 кв.м с панорамными окнами до 150 кв.м русские до 150 кв.м эклектика до 150 кв.м для узких участков до 150 кв.м готовые до 150 кв.м с балконом до 150 кв.м прямоугольные до 150 кв.м с котельной до 150 кв.м с кабинетом до 150 кв.м без бани до 150 кв.м с террасой до 150 кв.м без подвала до 150 кв.м с 4 спальнями до 150 кв.м с большой кухней из пеноблоков в стиле эклектика из пеноблоков с двухскатной крышей из пеноблоков с панорамными окнами из пеноблоков прямоугольные из пеноблоков с балконом из пеноблоков для постоянного проживания из пеноблоков недорогие из пеноблоков для неровных участков из пеноблоков для узких участков из пеноблоков готовые из пеноблоков 8х10 из пеноблоков до 120 м кв. из пеноблоков до 150 м кв. из пеноблоков от 100 до 200 м2 из пеноблоков узкие из пеноблоков с 4 спальнями из пеноблоков с большой кухней недорогие двухэтажные недорогие в русском стиле недорогие в стиле эклектика недорогие без гаража недорогие с террасой недорогие для постоянного проживания недорогие с двухскатной крышей недорогие с панорамными окнами недорогие без бани недорогие с кабинетом недорогие с котельной недорогие с балконом недорогие для узких участков недорогие прямоугольные недорогие 8х10 недорогие до 120 м2 недорогие до 150 м2 недорогие от 100 до 200 м2 в русском стиле без гаража в русском стиле с террасой в русском стиле с панорамными окнами в русском стиле с балконом в русском стиле прямоугольные в русском стиле для постоянного проживания в русском стиле для узких участков в русском стиле без бани в русском стиле с котельной в русском стиле с кабинетом в русском стиле с двускатной крышей в русском стиле узкие в русском стиле от 100 до 200 кв м из клееного бруса без гаража Показать все категории Скрыть категории

Похожие проекты
Состав проекта
Входит в стоимость
Цена, руб. Сроки, дней
Комплект архитектурно-строительных чертежей (АС) Входит в стоимость Готов к отправке
Готово к продаже
Цена, руб. Сроки, дней
Паспорт рабочего проекта 5 000 ₽ 3 рабочих дня в корзину
Дополнительная копия проекта формата А3 4 000 ₽ Готов к отправке в корзину
Электронная копия проекта (скан распечатанной версии) 4 000 ₽ 3 рабочих дня в корзину
Разрабатывается отдельно
Цена, руб. Сроки, дней
Адаптация фундамента (изменение типа фундамента) по запросу 14 рабочих дней
Дизайн интерьера (стоимость от 2200руб. за квад.метр площади) по запросу 30 рабочих дней
Внесение изменений в проект по запросу 20 рабочих дней
Зеркалирование проекта (для которого нет зеркальной версии) 8 000 ₽ 5 рабочих дней в корзину
Разработка Генплана участка, в масштабе 1:250 7 500 ₽ 5 рабочих дней в корзину
Фэншуй дома 20 000 ₽ 14 рабочих дней в корзину
Фэншуй участка 15 000 ₽ 14 рабочих дней в корзину
Фэншуй полная консультация дом+участок с выездом на объект 100 000 ₽ 30 рабочих дней в корзину
Опции проекта вы можете заказать в корзине при оформлении заказа
Предложения строителей Выбрать регион
Минимальная
4 017 100 ₽
Стандарт
4 962 300 ₽
Под чистовую отделку
6 498 250 ₽
Показать подробные комплектации
Минимальная
12 051 300 ₽
Стандарт
14 178 000 ₽
Под чистовую отделку
18 431 400 ₽
Показать подробные комплектации
Минимальная
6 043 372 ₽
Стандарт
8 967 585 ₽
Под чистовую отделку
14 231 167 ₽
Показать подробные комплектации
Минимальная
4 135 250 ₽
Стандарт
4 962 300 ₽
Под чистовую отделку
5 553 050 ₽
Показать подробные комплектации
Минимальная
3 813 409 ₽
Стандарт
5 596 765 ₽
Под чистовую отделку
5 987 842 ₽
Показать подробные комплектации
Минимальная
4 135 250 ₽
Стандарт
4 726 000 ₽
Под чистовую отделку
6 202 875 ₽
Показать подробные комплектации
Подбор строительной компании
Не знаете кому доверить строительство дома? Мы можем помочь! Подберем для вас из сотен наших партнеров несколько компаний с лучшем соотношением цена/качество под конкретно ваш запрос.
Подобрать
Посмотреть еще 32 компании Свернуть
Отзывы покупателей
Рейтинг покупателей
0 / 5 5 5 1
На основе 1 оценок покупателей
0%
0%
0%
0%
0%
Отзывы о проекте D1024
Отзыв о проекте D1024
Чтобы оставить отзыв, пожалуйста авторизуйтесь.
Подбор строительной компании
Не знаете кому доверить строительство дома? Мы можем помочь! Подберем для вас из сотен наших партнеров несколько компаний с лучшем соотношением цена/качество под конкретно ваш запрос.
Подобрать