Главная Проекты бани Проект бани с мансардой и подвалом

D62 Проект бани с мансардой и подвалом

Сравнить проект В избранное
Проект бани с мансардой и подвалом / 1
Проект бани с мансардой и подвалом / 2
Проект бани с мансардой и подвалом / 3
Проект бани с мансардой и подвалом / 4
Проект бани с мансардой и подвалом / 5
Проект бани с мансардой и подвалом / 6
Проект бани с мансардой и подвалом / 1
Проект бани с мансардой и подвалом / 2
Проект бани с мансардой и подвалом / 3
Проект бани с мансардой и подвалом / 4
Проект бани с мансардой и подвалом / 5
Проект бани с мансардой и подвалом / 6
D62
91 м²
Подготовка проекта:
Готов к отправке
Стоимость проекта
Купить проект
Задайте вопросы по проекту нашему архитектору
8 (800) 200-28-83
Время работы: пн-вс: с 9:00 до 20:00
Задать вопрос по проекту

Технические характеристики
Общие
Материал стен
Бревно
Общая площадь
91 м²
Жилая площадь
25.1 м²
Площадь застройки
48.0 м²
Приведенная площадь
91.82 м²
Количество жилых комнат/спален
1
Этажи
1 этаж + мансарда
Гараж
Нет гаража
Подвал / цокольный этаж
С окнами
Длина дома
6.5 м
Ширина дома
6.5 м
Высота в коньке
8.0 м
Кровля
Металлочерепица
Облицовка внешних стен
Без облицовки
Толщина несущих наружных стен
240 мм
Межэтажные перекрытия
По деревянным балкам
Внутренние не несущие перегородки
Каркасно-обшивные
Фундамент
Малозаглубленные ростверки
Терраса
Терраса крытая
Дополнительные
Сауна/баня внутри
Есть
Площадь гостиной
10.9 м²
Количество санузлов
1
Окно в ванной комнате
Есть
Котельная
Есть
Кладовая
1
Балкон / лоджия
Балкон
Планы помещений
Фасады
Описание проекта

Стилизованная под теремок баня со стенами из окоренного неоцилиндрованного бревна, дополненная элементами декора в виде резных столбов, балок, наличников дверей и окон.

Наличие помещений на трех уровнях делает эту баню полнофункциональным сооружением.

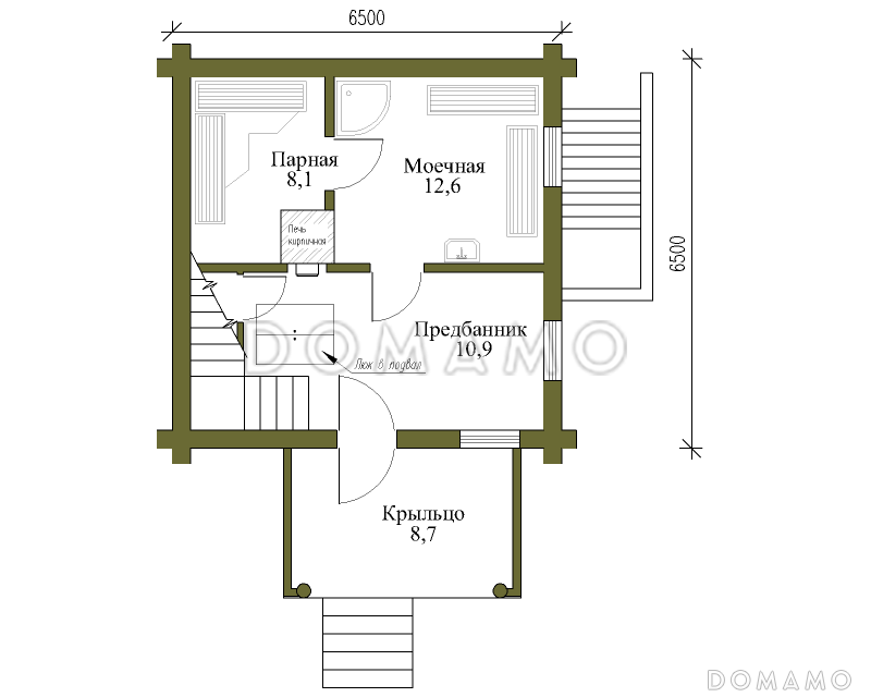
На первом этаже расположены двухместная парная с печью и моечная, в предбаннике — люк в подвальное помещение. Туалет оборудован в подлестничном пространстве.

Второй этаж предназначен для отдыха. Здесь расположена утепленная комната с выходом на лоджию. Комната достаточно просторная, чтобы в ней с удобством могла разместиться компания из 5-6 человек. На лоджии хватит места для шезлонга. Отопление 2-го этажа — электрическое. При желании, можно поставить дровяную печь, подключив ее к дымоходу парной.

Подвал (30,5 м2) имеет также вход с улицы. Здесь расположены котельная и большое хозяйственное помещение, которое можно использовать в качестве мастерской или склада для хранения домашней утвари.


Состав проекта
Входит в стоимость
Цена, руб. Сроки, дней
Комплект архитектурно-строительных чертежей (АС) Входит в стоимость Готов к отправке
Готово к продаже
Цена, руб. Сроки, дней
Паспорт рабочего проекта 5 000 ₽ 3 рабочих дня в корзину
Дополнительная копия проекта формата А3 4 000 ₽ Готов к отправке в корзину
Электронная копия проекта (скан распечатанной версии) 4 000 ₽ 3 рабочих дня в корзину
Разрабатывается отдельно
Цена, руб. Сроки, дней
Адаптация фундамента (изменение типа фундамента) по запросу 14 рабочих дней
Дизайн интерьера (стоимость от 2200руб. за квад.метр площади) по запросу 30 рабочих дней
Внесение изменений в проект по запросу 20 рабочих дней
Инженерные разделы: ВК + ОВ + ЭО 40 000 ₽ 20 рабочих дней в корзину
Зеркалирование проекта (для которого нет зеркальной версии) 8 000 ₽ 5 рабочих дней в корзину
Разработка Генплана участка, в масштабе 1:250 7 500 ₽ 5 рабочих дней в корзину
Фэншуй дома 20 000 ₽ 14 рабочих дней в корзину
Фэншуй участка 15 000 ₽ 14 рабочих дней в корзину
Фэншуй полная консультация дом+участок с выездом на объект 100 000 ₽ 30 рабочих дней в корзину
Опции проекта вы можете заказать в корзине при оформлении заказа
Отзывы покупателей
Рейтинг покупателей
0 / 5 5 5 1
На основе 1 оценок покупателей
0%
0%
0%
0%
0%
Отзывы о проекте D62
Отзыв о проекте D62
Чтобы оставить отзыв, пожалуйста авторизуйтесь.
Подбор строительной компании
Не знаете кому доверить строительство дома? Мы можем помочь! Подберем для вас из сотен наших партнеров несколько компаний с лучшем соотношением цена/качество под конкретно ваш запрос.
Подобрать