Главная Проекты бани Проект одноэтажной бани с террасой и мансардой

D5185 Проект одноэтажной бани с террасой и мансардой

Сравнить проект В избранное
Проект одноэтажной бани с террасой и мансардой / 1
Проект одноэтажной бани с террасой и мансардой / 2
Проект одноэтажной бани с террасой и мансардой / 3
Проект одноэтажной бани с террасой и мансардой / 4
Проект одноэтажной бани с террасой и мансардой / 5
Проект одноэтажной бани с террасой и мансардой / 1
Проект одноэтажной бани с террасой и мансардой / 2
Проект одноэтажной бани с террасой и мансардой / 3
Проект одноэтажной бани с террасой и мансардой / 4
Проект одноэтажной бани с террасой и мансардой / 5
D5185
108 м²
Подготовка проекта:
Готов к отправке
Стоимость проекта
Купить проект
Задайте вопросы по проекту нашему архитектору
8 (800) 200-28-83
Время работы: пн-вс: с 9:00 до 20:00
Задать вопрос по проекту

Технические характеристики
Общие
Материал стен
Газобетон
Общая площадь
108 м²
Жилая площадь
45 м²
Площадь застройки
92.7 м²
Приведенная площадь
95.4 м²
Количество жилых комнат/спален
1
Этажи
1 этаж + мансарда
Гараж
Нет гаража
Подвал / цокольный этаж
Без подвала
Длина дома
14.2 м
Ширина дома
7.7 м
Высота в коньке
5 м
Кровля
Металлочерепица
Облицовка внешних стен
Мокрая штукатурка
Толщина несущих наружных стен
375 мм
Межэтажные перекрытия
Монолитные
Внутренние не несущие перегородки
Газобетонные
,
Кирпичные
Фундамент
Малозаглубленные ростверки
Терраса
Терраса крытая
Дополнительные
Мансардные окна
Есть
Камин
Есть
Сауна/баня внутри
Есть
Купель
Есть
Площадь гостиной
12 м²
Площадь кухни
6 м²
Количество санузлов
2
Окно в ванной комнате
Есть
Котельная
Есть
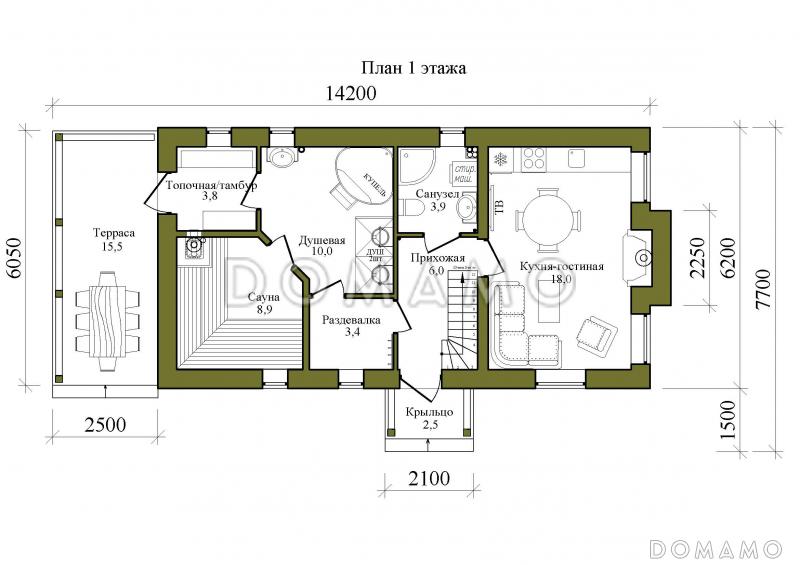
Планы помещений

Похожие проекты
Состав проекта
Входит в стоимость
Цена, руб. Сроки, дней
Комплект архитектурно-строительных чертежей (АС) Входит в стоимость Готов к отправке
Готово к продаже
Цена, руб. Сроки, дней
Паспорт рабочего проекта 5 000 ₽ 3 рабочих дня в корзину
Дополнительная копия проекта формата А3 4 000 ₽ Готов к отправке в корзину
Электронная копия проекта (скан распечатанной версии) 4 000 ₽ 3 рабочих дня в корзину
Разрабатывается отдельно
Цена, руб. Сроки, дней
Адаптация фундамента (изменение типа фундамента) по запросу 14 рабочих дней
Дизайн интерьера (стоимость от 2200руб. за квад.метр площади) по запросу 30 рабочих дней
Внесение изменений в проект по запросу 20 рабочих дней
Зеркалирование проекта (для которого нет зеркальной версии) 8 000 ₽ 5 рабочих дней в корзину
Разработка Генплана участка, в масштабе 1:250 7 500 ₽ 5 рабочих дней в корзину
Фэншуй дома 20 000 ₽ 14 рабочих дней в корзину
Фэншуй участка 15 000 ₽ 14 рабочих дней в корзину
Фэншуй полная консультация дом+участок с выездом на объект 100 000 ₽ 30 рабочих дней в корзину
Опции проекта вы можете заказать в корзине при оформлении заказа
Отзывы покупателей
Рейтинг покупателей
0 / 5 5 5 1
На основе 1 оценок покупателей
0%
0%
0%
0%
0%
Отзывы о проекте D5185
Отзыв о проекте D5185
Чтобы оставить отзыв, пожалуйста авторизуйтесь.
Подбор строительной компании
Не знаете кому доверить строительство дома? Мы можем помочь! Подберем для вас из сотен наших партнеров несколько компаний с лучшем соотношением цена/качество под конкретно ваш запрос.
Подобрать